Montréal (Le Sud-Ouest) QC, H4C 2M9
Remarques :
Immeuble à l'architecture distinctive au coeur de St-Henri face au Parc des Corroyeurs et le Canal Lachine. Superbe unité de coin offrant 2 chambres à coucher et un espace de vie à aire ouverte, baigné de lumière naturelle et mis en valeur par de magnifiques planchers de bois franc et finition supérieur. Plafonds 9' et portes surdimensionnées en bois massif. La chambre principale spacieuse offre un placard walk-in ainsi qu'une seconde chambre de bonne dimension. Grand placard de rangement dans l'entrée. Thermopompe centrale (2024) à haute capacité offre un maximum de comfort pour conserver une température équilibré autant en hiver qu'en été.
Situé dans un immeuble exclusif de seulement six unités. Conçu par la firme d'architecture Affleck de la Riva, ce condo bénéficie d'un emplacement recherché au coeur du Sud-Ouest, à distance de marche du marché Atwater et station de metro Lionel Groulx
L'article 16 du Règlement sur les conditions d'exercice
d'une opération de courtage, sur la déontologie des
courtiers et sur la publicité prévoit ceci :
«Le titulaire de permis qui représente une partie doit
informer, dans les meilleurs délais, toute autre partie qui
n'est pas représentée du fait qu'il doit protéger et
promouvoir les intérêts de la partie qu'il représente tout
en accordant un traitement équitable à la partie qui n'est
pas représentée.»
Pour prendre une décision éclairée, vous êtes par la
présente informé des choix qui s'offrent à vous, soit :
a) faire affaire directement avec le courtier du vendeur et
recevoir un traitement équitable;
ou
b) faire affaire avec votre propre courtier qui veillera à
la protection de vos intérêts.
Dans l'éventualité que vous choisissez de faire affaire
avec votre propre courtier, il est souhaitable qu'il ou
elle soit présent lors de la visite des lieux.
Inclusions: Espace de rangement au garage, réfrigérateur, lave-vaisselle, cuisinière, laveuse, sécheuse, thermopompe centrale (2024), rideaux, tringles, stores, table à manger, rangement intégré à l'entrée, rangement dans le walk-in de la chambre principale ainsi que les étagères du placard du salon.
Particularités du bâtiment :
- Style: Appartement
- Équipement disponible: Balcon privé, Échangeur d'air, Interphone, Ouvre-porte électrique (garage), Thermopompe centrale
- Garage: Chauffé, Intégré, Simple largeur
- Particularités du bâtiment: Unité de coin
- Proximité: Marché Atwater et Canal Lachine, Autoroute, Cégep, Garderie/CPE, Hôpital, Métro, Parc, Piste cyclable, École primaire, Réseau Express Métropolitain (REM), École secondaire, Ski de fond, Train de banlieue, Transport en commun, Université
- Salle de bains: Douche indépendante
- Stationnement: Oui
- Stationnement cadastré: Garage
- Type d'animaux: Animaux permis
- Vue: Sur l'eau
- Mode de chauffage: Air soufflé (pulsé)
- Énergie pour le chauffage: Électricité
- Approvisionnement en eau: Municipalité
- Système d'égouts: Municipalité
Taxes:
- Taxes municipales: 5 062 $
- Taxe scolaire: 617 $
- Taxes annuelles totales: 5 679 $
Dépenses:
- Électrique: 683 $
Property Assessemnt:
- Évaluation du terrain: 79 100 $
- Évaluation de l'immeuble: 732 100 $
- Évaluation totale: 811 200 $
Caractéristiques :
- Bâti en: 2013
- Chambres : 2
- Frais de copropriété : 577 $ Mensuel
- Salle(s) de bains : 1
- Superficie habitable (approx): 1163.0 Pieds carrés
- Zonage: RESI
- Nbre d'espaces de stationnement: 1
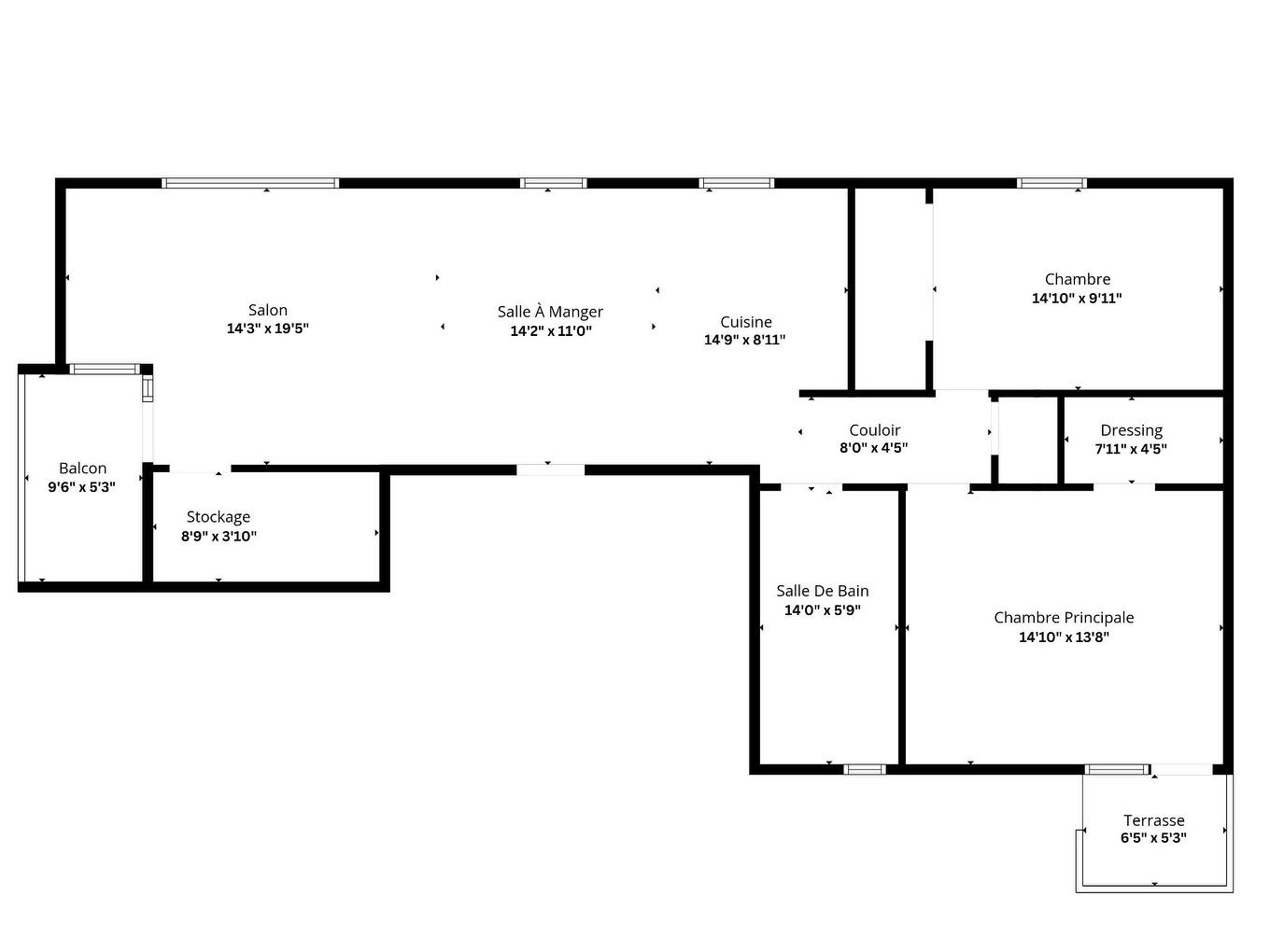
Détails des pièces :
- Salon - Irrégulier 2e niveau 4.34 m x 5.92 m 14.3 p x 19.5 p Plancher : Bois
- Rangement 2e niveau 2.67 m x 1.17 m 8.9 p x 3.10 p Plancher : Bois
- Salle à dîner 2e niveau 4.32 m x 3.35 m 14.2 p x 11.0 p Plancher : Bois
- Cuisine 2e niveau 4.50 m x 2.72 m 14.9 p x 8.11 p Plancher : Bois
- Chambre principale 2e niveau 4.52 m x 4.01 m 14.10 p x 13.2 p Plancher : Bois
- Penderie (Walk-in) 2e niveau 2.41 m x 1.35 m 7.11 p x 4.5 p Plancher : Bois
- Chambre 2e niveau 4.52 m x 3.02 m 14.10 p x 9.11 p Plancher : Bois
- Salle de bains 2e niveau 4.27 m x 1.75 m 14.0 p x 5.9 p Plancher : Céramique
Convertir la mesure en :
Données fournies par : Centris - 600 Ch Du Golf, Ile -Des -Soeurs, Québec H3E 1A8
Nous croyons que tous les renseignements affichés sont exacts, mais nous ne le garantissons pas; les renseignements devraient être vérifiés de façon indépendante. Aucune garantie ou représentation de quelque nature que ce soit n’est offerte. Droits© 2021 Tous les droits sont réservés.
Tendances des prix du marché immobilier
Emplacement de 3-3741 Rue St-Ambroise, Montréal (Le Sud-Ouest), QC, H4C 2M9
Données démographiques de 3-3741 Rue St-Ambroise, Montréal (Le Sud-Ouest), QC, H4C 2M9
Étape de vie
Jeunes couplesType d'emploi
Industrie des servicesRevenu moyen du ménage
130 362.07 $Nombre moyen d'enfants
1,65Population à domicile
Structure à domicile
Âge de la population
Éducation
Niveau d'éducation
No certificate/diploma/degree
11.55 %Diplôme d'études secondaires ou équivalent
14.36 %Certificat ou diplôme d'apprentissage ou d'une école de métiers
7.23 %Diplôme d'études collégiales ou d'études postsecondaires (non universitaires)
14.74 %Certificat d'études universitaires
5.57 %Diplômes d'études universitaires
46.55 %Navetteur
Se rendre au travail
En auto
45.56 %En transport en commun
29.92 %À pied
17.46 %À bicyclette
3.46 %Par tout autre moyen
3.6 %Diversité Culturelle
Connaissance des langues officielles
Langue maternelle
Données Sur Le Bâtiment
Type de bâtiment
Appartements (faible hauteur et à étages multiples)
88.45 %Maisons
11.55 %


























































