Brossard QC, J4W 3H9
Remarques :
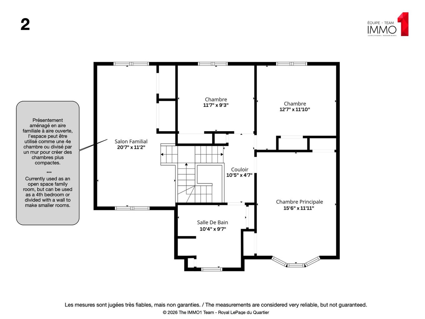
Située dans le très recherché secteur T de Brossard, cette charmante propriété familiale offre confort, flexibilité et une qualité de vie idéale. Établie sur un croissant paisible à quelques minutes du REM Panama, des autoroutes et des commodités de la Rive-Sud, elle convient parfaitement aux familles. La propriété bénéficie d'une excellente luminosité grâce à une cour arrière orientée au sud, offrant un ensoleillement toute la journée. La quatrième chambre à l'étage est actuellement aménagée en salle familiale à aire ouverte et peut être reconvertie en chambre. Le sous-sol permet également l'aménagement d'une chambre additionnelle.
*** La quatrième chambre à l'étage est actuellement aménagée en salle familiale à aire ouverte, offrant un espace de vie flexible et confortable. Cet espace peut facilement être reconverti en chambre principale, tel que conçu à l'origine, ou être divisé par l'ajout d'un mur afin de créer une chambre et une salle familiale plus petite, selon vos besoins (veuillez consulter les plans d'étage et le concept d'aménagement joints).
*** Le sous-sol peut également accueillir facilement une chambre supplémentaire (veuillez consulter les plans d'étage et le concept d'aménagement joints).
Proximité des transports :
> Autoroutes (10, 15, 30) : <10 min (en voiture)
> REM -- station Panama : <5 min (en voiture)
> Services d'autobus : T51, 100 Express Montréal, 130 Express Montréal et autres lignes locales -- <10 min (à pied)
Commerces, restaurants et services (<10 min en voiture) :
> Centre commercial Champlain
> Quartier DIX30
> Costco Brossard (Taschereau)
> Supermarché T&T et supermarché chinois C&T
> IGA, IGA Extra, Maxi, Metro Plus, Super C
> Adonis
> SAQ, Walmart, RONA
Style de vie extérieur -- à distance de marche :
> Aire de jeux pour enfants
> Terrain de soccer
> Terrains de basketball et de volleyball
> Patinoire extérieure
> Jeux d'eau (pataugeoire)
Parcs, loisirs et installations communautaires :
> Plusieurs parcs de quartier et espaces verts
> Complexe aquatique de Brossard (piscines intérieures et extérieures)
> Complexe sportif CN
> Centres communautaires et gyms
> Pistes cyclables et sentiers pédestres
> Cinéplex Brossard
Éducation :
> Écoles primaires : École Charles-Bruneau, École Georges-P.-Vanier, École Marie-Victorin, École Sainte-Claire, École Samuel-De-Champlain, Good Shepherd Elementary School, Harold-Napper Elementary School -- <10 min (en voiture)
> Écoles secondaires : Antoine-Brossard High School, Lucille-Teasdale High School -- <10 min (en voiture)
> Collège : Champlain College Saint-Lambert -- <10 min (en voiture)
> Université : Université de Sherbrooke -- campus de Longueuil -- <10 min (en voiture)
Santé :
Hôpital Charles-Le Moyne -- <15 min (en voiture)
Inclusions: Tous les rideaux
Particularités du bâtiment :
- Style: Maison détachée
- Allée: Pavé uni
- Dimensions : 9.18 x 11.3 METRE
- Équipement disponible: Ouvre-porte électrique (garage), Thermopompe murale
- Foyer: Oui
- Foyer-Poêle: Propane
- Garage: Chauffé, Intégré, Simple largeur
- Piscine: Oui
- Rénovations: Couverture
- Revêtement de la toiture: Bardeaux d'asphalte
- Sous-sol: 6 pieds et plus, Totalement aménagé
- Stationnement: Oui
- Mode de chauffage: Plinthes électriques
- Énergie pour le chauffage: Électricité
- Approvisionnement en eau: Municipalité
- Système d'égouts: Municipalité
Taxes:
- Taxes municipales: 3 460 $
- Taxe scolaire: 543 $
- Taxes annuelles totales: 4 086 $
Property Assessemnt:
- Évaluation du terrain: 253 300 $
- Évaluation de l'immeuble: 572 100 $
- Évaluation totale: 825 400 $
Caractéristiques :
- Bâti en: 1986
- Chambres : 4+1
- Dimensions du terrain : 460.50 Mètres carrés
- Irregular: Oui
- Largeur du terrain en façade : 15.1 Mètre
- Profondeur du terrain : 30.5 Mètre
- Salle(s) de bains : 2
- Salle(s) d'eau : 1
- Zonage: RESI
- Nbre d'espaces de stationnement: 5
Détails des pièces :
- Salon Rez-de-chaussée 5.05 m x 3.43 m 16.7 p x 11.3 p Plancher : Bois
- Salle à dîner Rez-de-chaussée 3.10 m x 3.38 m 10.2 p x 11.1 p Plancher : Bois
- Cuisine Rez-de-chaussée 3.86 m x 3.38 m 12.8 p x 11.1 p Plancher : Céramique
- Salle d'eau Rez-de-chaussée 1.57 m x 2.36 m 5.2 p x 7.9 p Plancher : Céramique
- Salle familiale 2e niveau 3.40 m x 6.27 m 11.2 p x 20.7 p Plancher : Bois Note: Peut être utilisé comme CAC
- Chambre principale 2e niveau 3.61 m x 4.72 m 11.10 p x 15.6 p Plancher : Bois
- Chambre 2e niveau 3.61 m x 3.15 m 11.10 p x 10.4 p Plancher : Bois
- Chambre 2e niveau 2.82 m x 3.53 m 9.3 p x 11.7 p Plancher : Bois
- Salle de bains 2e niveau 3.15 m x 2.92 m 10.4 p x 9.7 p Plancher : Céramique
- Chambre Sous-sol 3.53 m x 3.25 m 11.7 p x 10.8 p Plancher : Plancher flottant
- Salle de jeux Sous-sol 5.18 m x 3.30 m 17.0 p x 10.10 p Plancher : Plancher flottant
- Salle de bains Sous-sol 3.40 m x 2.24 m 11.2 p x 7.4 p Plancher : Céramique
Convertir la mesure en :
Données fournies par : Centris - 600 Ch Du Golf, Ile -Des -Soeurs, Québec H3E 1A8
Nous croyons que tous les renseignements affichés sont exacts, mais nous ne le garantissons pas; les renseignements devraient être vérifiés de façon indépendante. Aucune garantie ou représentation de quelque nature que ce soit n’est offerte. Droits© 2021 Tous les droits sont réservés.
Tendances des prix du marché immobilier
Emplacement de 1785 Crois. Toscanini, Brossard, QC, J4W 3H9
Données démographiques de 1785 Crois. Toscanini, Brossard, QC, J4W 3H9
Étape de vie
Familles avec parents plus âgésType d'emploi
Industrie des services/Cols blancsRevenu moyen du ménage
114 872.16 $Nombre moyen d'enfants
1,77Population à domicile
Structure à domicile
Âge de la population
Éducation
Niveau d'éducation
No certificate/diploma/degree
12.25 %Diplôme d'études secondaires ou équivalent
21.52 %Certificat ou diplôme d'apprentissage ou d'une école de métiers
7.73 %Diplôme d'études collégiales ou d'études postsecondaires (non universitaires)
21.81 %Certificat d'études universitaires
4.09 %Diplômes d'études universitaires
32.61 %Navetteur
Se rendre au travail
En auto
72.62 %En transport en commun
22.0 %À pied
0.27 %À bicyclette
1.33 %Par tout autre moyen
3.78 %Diversité Culturelle
Connaissance des langues officielles
Langue maternelle
Données Sur Le Bâtiment
Type de bâtiment
Appartements (faible hauteur et à étages multiples)
25.86 %Maisons
74.14 %




























































