Maison À vendre à Altadore, Calgary, Alberta
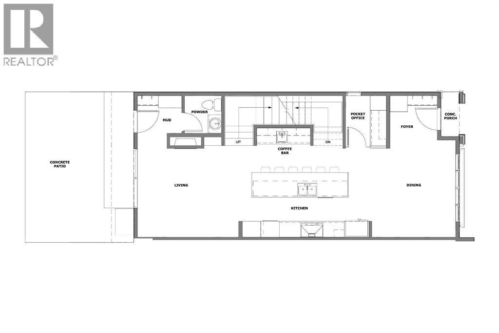
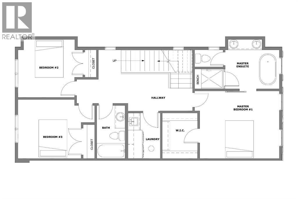
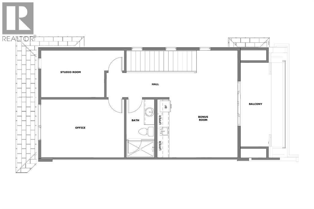
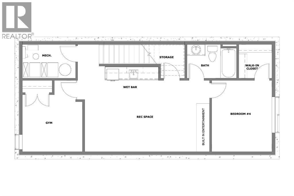
1 550 000 $ ÉvaluationExpressMC:3+1 Chambres
5 Salles de bain
-
Détails
-
Carte
-
Données démographiques
-
Vue de la rue
-
Itinéraire
-
Publicité



































