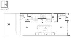
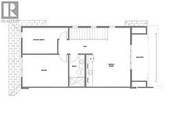
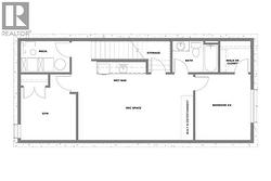
4507 17 Street SW, Calgary, Alberta, T2T 4R3
1 550 000 $No. MLS® A2244945
Le contenu de cette inscription est fourni par REALTOR.ca et a été autorisé par les membres de l'Association canadienne de l'immeuble.
Photos supplémentaires


































