Vaudreuil-Dorion QC, J7V 8B1
Remarques :
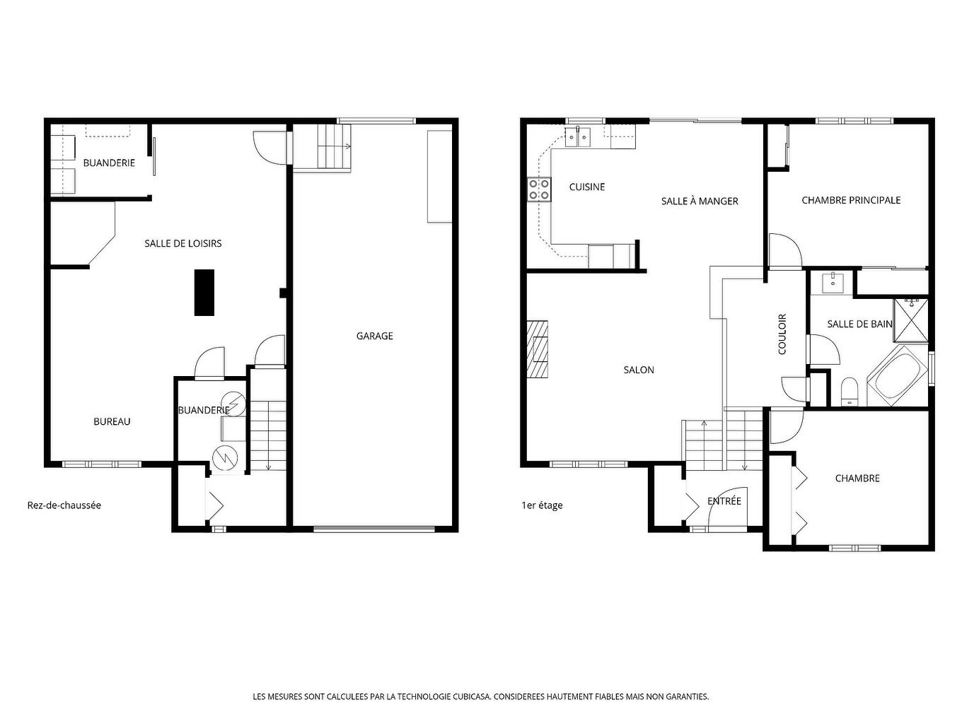
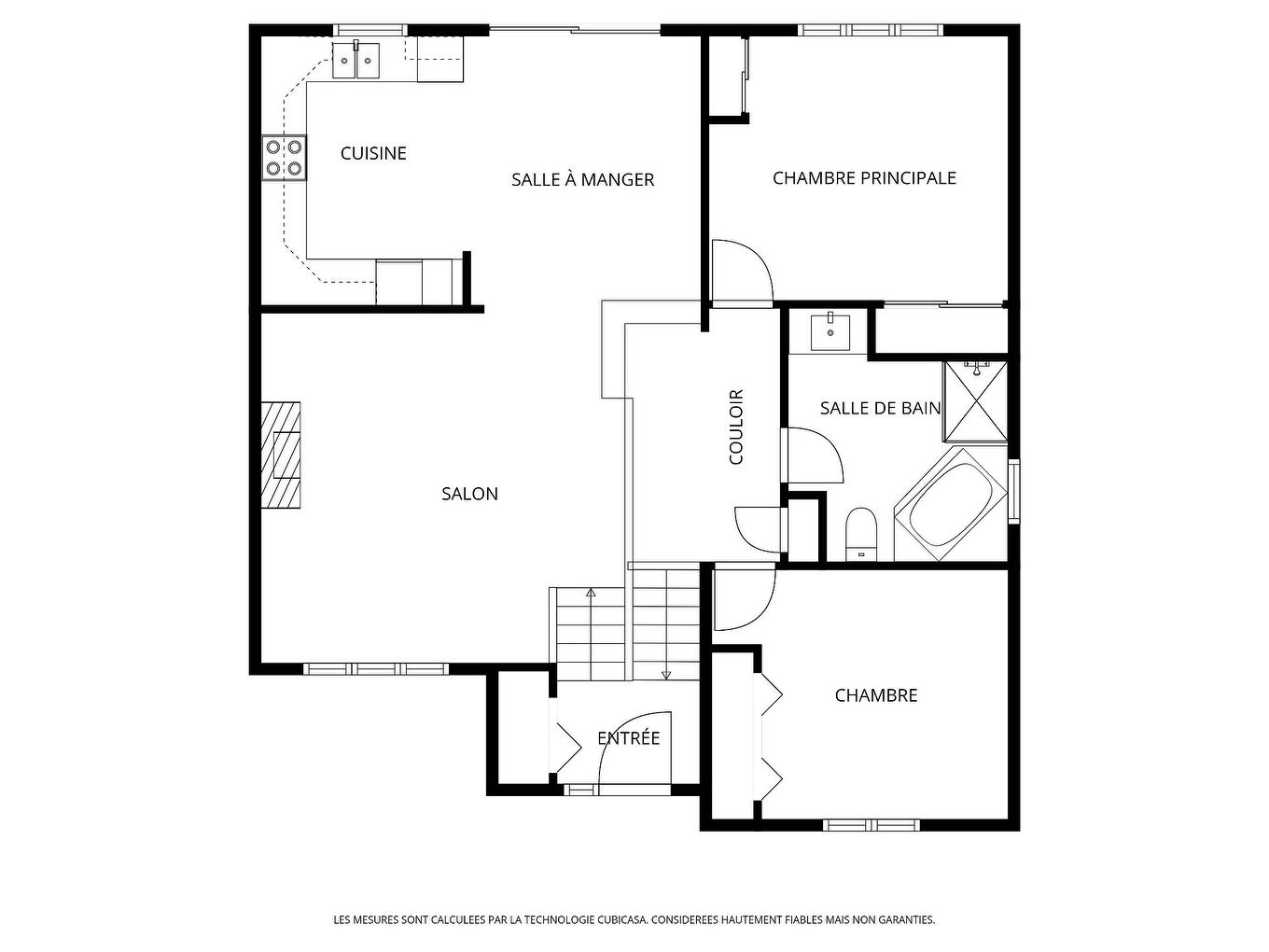
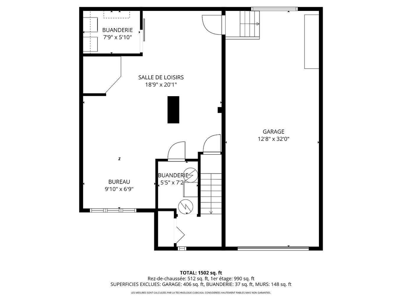
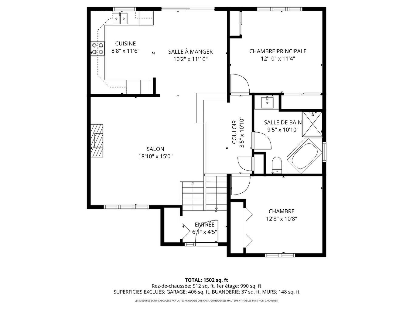
Superbe maison à paliers multiples. La maison comprend deux chambres à coucher, ainsi qu'une salle de bain complète avec douche vitrée et bain podium.Le sous-sol entièrement aménagé dispose d'une vaste salle familiale, idéale pour recevoir. On y retrouve également une salle de lavage indépendante et un accès direct au garage.L'espace de vie principal propose une aire ouverte lumineuse. Le salon, agrémenté d'un foyer au propane, crée une ambiance conviviale et accueillante. La cuisine, pratique et bien pensée, offre beaucoup d'espace de rangement et inclut les électroménagers.
Idéalement située dans un secteur prisé, à proximité du centre-ville, des services et avec un accès rapide à l'autoroute 20 30 et 40. À proximité des parcs, à quelques minutes à pied de la gare, des
commerces et des restaurants. Écoles primaires : École Sainte-Madeleine, École Saint-Michel, École Brind'Amour, École des Légendes, École de
l'Hymne-au-Printemps, École Primaire Pierre-Elliott-Trudeau.
Écoles secondaires : École Secondaire de la Cité-des-Jeunes (Pavillon Lévis-Sauvé), École Secondaire de la
Cité-des-Jeunes (Cité-des-Jeunes (Lionel-Groulx).
À l'extérieur, la cour arrière intime , offre un bel espace de détente avec une terrasse conviviale et une piscine hors terre au sel. Un garage simple ainsi qu'un cabanon complètent l'ensemble pour un maximum de rangement.
Une propriété clé en main, agréable à visiter et idéale pour une famille ou un couple à la recherche de confort et de tranquillité.
Inclusions: Réfrigérateur, cuisinière, lave-vaisselle, laveuse et sécheuse.
Exclusions : Stores (chambre principale), sonnette, domotique, borne de recharge pour véhicule électrique, les rideaux, luminaire en face de la salle de bain et de la chambre principale.
Particularités du bâtiment :
- Style: Maison détachée
- Air climatisé: Oui
- Allée: Asphalte, Double largeur ou plus
- Armoires de cuisine: Mélamine
- Dimensions : 34.5 x 33.9 Pieds
- Équipement disponible: Borne de recharge - niveau 2, Climatiseur mural, Ouvre-porte électrique (garage)
- Fondation: Béton coulé
- Foyer: Oui
- Foyer-Poêle: Foyer au gaz, Poêle au bois
- Garage: Attaché, Chauffé, Intégré, Simple largeur
- Piscine: Oui
- Proximité: Autoroute, Garderie/CPE, Parc, Piste cyclable, École primaire, École secondaire, Train de banlieue, Transport en commun
- Revêtement de la toiture: Bardeaux d'asphalte
- Sous-sol: 6 pieds et plus, Totalement aménagé
- Stationnement: Oui
- Mode de chauffage: Plinthes électriques
- Énergie pour le chauffage: Électricité
- Approvisionnement en eau: Municipalité
- Système d'égouts: Municipalité
Taxes:
- Taxes municipales: 2 581 $
- Taxe scolaire: 308 $
- Taxes annuelles totales: 2 889 $
Property Assessemnt:
- Évaluation du terrain: 206 700 $
- Évaluation de l'immeuble: 266 900 $
- Évaluation totale: 473 600 $
Caractéristiques :
- Bâti en: 1990
- Chambres : 2
- Irregular: Oui
- Salle(s) de bains : 1
- Superficie habitable (approx): 102.0 Mètres carrés
- Zonage: RESI
- Nbre d'espaces de stationnement: 5
Détails des pièces :
- Hall d'entrée Rez-de-chaussée 2.11 m x 1.35 m 6.11 p x 4.5 p Plancher : Céramique
- Salon - Irrégulier Rez-de-chaussée 4.93 m x 4.65 m 16.2 p x 15.3 p Plancher : Bois
- Salle à dîner Rez-de-chaussée 3.51 m x 2.92 m 11.6 p x 9.7 p Plancher : Céramique
- Cuisine Rez-de-chaussée 3.51 m x 2.97 m 11.6 p x 9.9 p Plancher : Céramique
- Hall d'entrée 2e niveau 3.10 m x 2.69 m 10.2 p x 8.10 p Plancher : Bois
- Chambre principale 2e niveau 3.99 m x 3.40 m 13.1 p x 11.2 p Plancher : Parqueterie
- Chambre 2e niveau 3.99 m x 3.25 m 13.1 p x 10.8 p Plancher : Plancher flottant
- Salle de bains 2e niveau 3.33 m x 2.92 m 10.11 p x 9.7 p Plancher : Céramique
- Salle familiale Sous-sol 8.10 m x 5.69 m 26.7 p x 18.8 p Plancher : Plancher flottant
- Salle de lavage Sous-sol 2.39 m x 1.68 m 7.10 p x 5.6 p Plancher : Plancher flottant
Convertir la mesure en :
Données fournies par : Centris - 600 Ch Du Golf, Ile -Des -Soeurs, Québec H3E 1A8
Nous croyons que tous les renseignements affichés sont exacts, mais nous ne le garantissons pas; les renseignements devraient être vérifiés de façon indépendante. Aucune garantie ou représentation de quelque nature que ce soit n’est offerte. Droits© 2021 Tous les droits sont réservés.
Tendances des prix du marché immobilier
Emplacement de 118 Rue Guy, Vaudreuil-Dorion, QC, J7V 8B1
Données démographiques de 118 Rue Guy, Vaudreuil-Dorion, QC, J7V 8B1
Étape de vie
Familles avec parents dans la cinquantaineType d'emploi
Industrie des services/Cols blancsRevenu moyen du ménage
106 637.43 $Nombre moyen d'enfants
1,73Population à domicile
Structure à domicile
Âge de la population
Éducation
Niveau d'éducation
No certificate/diploma/degree
17.65 %Diplôme d'études secondaires ou équivalent
23.67 %Certificat ou diplôme d'apprentissage ou d'une école de métiers
12.34 %Diplôme d'études collégiales ou d'études postsecondaires (non universitaires)
22.73 %Certificat d'études universitaires
1.01 %Diplômes d'études universitaires
22.6 %Navetteur
Se rendre au travail
En auto
89.1 %En transport en commun
2.69 %À pied
5.17 %À bicyclette
0.08 %Par tout autre moyen
2.96 %Diversité Culturelle
Connaissance des langues officielles
Langue maternelle
Données Sur Le Bâtiment
Type de bâtiment
Appartements (faible hauteur et à étages multiples)
40.43 %Maisons
59.57 %


































































