Québec (Sainte-Foy/Sillery/Cap-Rouge) QC, G1W 1N4
Remarques :
Magnifique propriété ancestrale rénovée au fil des ans, et soigneusement entretenue, vous offre un cachet préservé et un décor actuel. Elle comprend 6 chambres, 3 salles de bains, une salle d'eau, un foyer, ainsi qu'une cuisine fonctionnelle avec îlot. La chambre du rez-de-chaussée avec sortie extérieure et salle de bains attenante offre plusieurs possibilités, elle est idéale pour vos divers projets. Grand terrain paysager de plus de 10 000 pi², bordé par des haies matures, assurant une intimité remarquable. Un véritable havre de paix, situé dans un secteur très recherché. Demandez une visite sans attendre.
Les visites débuteront Jeudi le 15 Janvier 2026 et la présentation des offres se fera lundi le 19 Janvier 2026, si offre il y a.
Sillery, secteur d'exception reconnu pour son prestige, son patrimoine architectural et son environnement verdoyant. Ce quartier prisé offre une qualité de vie incomparable, alliant calme, intimité et raffinement, tout en étant à proximité des meilleures écoles, des services, des parcs, du centre-ville de Québec et des grands axes routiers. Un emplacement recherché où se côtoient histoire, élégance et art de vivre.
Particularités du bâtiment :
- Style: Maison détachée
- Armoires de cuisine: Bois
- Dimensions : 11.4 x 13.0 METRE
- Fenestration: Bois
- Fondation: Béton coulé, Pierre
- Foyer: Oui
- Foyer-Poêle: Foyer au bois
- Proximité: Autoroute, Cégep, Garderie/CPE, Hôpital, École primaire, École secondaire, Transport en commun, Université
- Revêtement: Bardeaux de cèdre, Bois, Brique, Vinyle
- Revêtement de la toiture: Bardeaux d'asphalte
- Sous-sol: Bas (moins de 6 pieds), Vide sanitaire
- Stationnement: Oui
- Terrain: Bordé par des haies
- Topographie: Plat
- Mode de chauffage: Air soufflé (pulsé), Plinthes électriques
- Énergie pour le chauffage: Électricité, Gaz naturel
- Approvisionnement en eau: Municipalité
- Système d'égouts: Municipalité
Taxes:
- Taxes municipales: 5 321 $
- Taxe scolaire: 458 $
- Taxes annuelles totales: 5 779 $
Dépenses:
- Électrique: 1 260 $
- Gaz: 2 357 $
Property Assessemnt:
- Évaluation du terrain: 393 000 $
- Évaluation de l'immeuble: 262 000 $
- Évaluation totale: 655 000 $
Caractéristiques :
- Bâti en: 1900
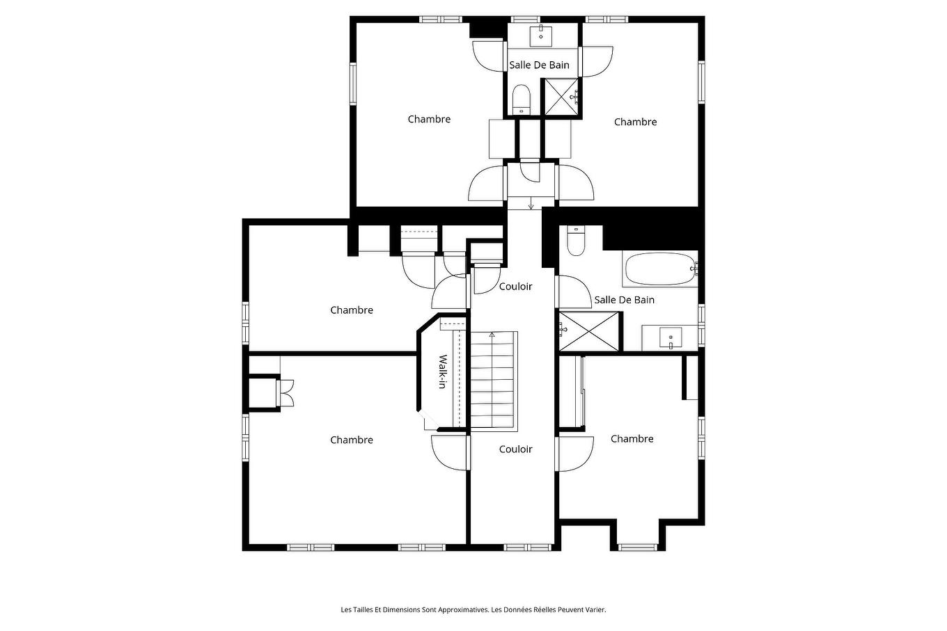
- Chambres : 6
- Dimensions du terrain : 954.20 Mètres carrés
- Irregular: Oui
- Largeur du terrain en façade : 33.07 Mètre
- Profondeur du terrain : 30.48 Mètre
- Salle(s) de bains : 3
- Salle(s) d'eau : 1
- Zonage: RESI
- Nbre d'espaces de stationnement: 2
Détails des pièces :
- Hall d'entrée Rez-de-chaussée 3.30 m x 3.51 m 10.10 p x 11.6 p Plancher : Bois Note: salle de lavage
- Cuisine Rez-de-chaussée 4.42 m x 3.84 m 14.6 p x 12.7 p Plancher : Autre - Ardoise
- Chambre Rez-de-chaussée 4.55 m x 4.60 m 14.11 p x 15.1 p Plancher : Bois Note: salle de bains +sortie ext.
- Salle de bains Rez-de-chaussée 1.50 m x 1.85 m 4.11 p x 6.1 p Plancher : Céramique
- Salle à dîner Rez-de-chaussée 4.45 m x 4.72 m 14.7 p x 15.6 p Plancher : Bois
- Salon Rez-de-chaussée 4.45 m x 4.72 m 14.7 p x 15.6 p Plancher : Bois Note: au bois
- Bureau Rez-de-chaussée 4.45 m x 4.72 m 14.7 p x 15.6 p Plancher : Bois
- Salle d'eau Rez-de-chaussée 1.60 m x 0.74 m 5.3 p x 2.5 p Plancher : Céramique
- Chambre principale 2e niveau 5.03 m x 4.14 m 16.6 p x 13.7 p Plancher : Bois
- Chambre 2e niveau 3.84 m x 3.51 m 12.7 p x 11.6 p Plancher : Bois
- Chambre 2e niveau 4.98 m x 2.92 m 16.4 p x 9.7 p Plancher : Parqueterie
- Chambre 2e niveau 3.07 m x 4.47 m 10.1 p x 14.8 p Plancher : Plancher flottant
- Chambre 2e niveau 2.69 m x 4.50 m 8.10 p x 14.9 p Plancher : Plancher flottant
- Salle de bains 2e niveau 2.84 m x 3.30 m 9.4 p x 10.10 p Plancher : Céramique
- Salle de bains 2e niveau 1.63 m x 2.29 m 5.4 p x 7.6 p Plancher : Céramique
Convertir la mesure en :
Données fournies par : Centris - 600 Ch Du Golf, Ile -Des -Soeurs, Québec H3E 1A8
Nous croyons que tous les renseignements affichés sont exacts, mais nous ne le garantissons pas; les renseignements devraient être vérifiés de façon indépendante. Aucune garantie ou représentation de quelque nature que ce soit n’est offerte. Droits© 2021 Tous les droits sont réservés.
Tendances des prix du marché immobilier
Données démographiques de 2671 Ch. St-Louis, Québec (Sainte-Foy/Sillery/Cap-Rouge), QC, G1W 1N4
Étape de vie
Familles avec parents dans la cinquantaineType d'emploi
Industrie des services/Cols blancsRevenu moyen du ménage
179 023.05 $Nombre moyen d'enfants
1,88Population à domicile
Structure à domicile
Âge de la population
Éducation
Niveau d'éducation
No certificate/diploma/degree
4.69 %Diplôme d'études secondaires ou équivalent
11.2 %Certificat ou diplôme d'apprentissage ou d'une école de métiers
2.56 %Diplôme d'études collégiales ou d'études postsecondaires (non universitaires)
22.2 %Certificat d'études universitaires
5.6 %Diplômes d'études universitaires
53.75 %Navetteur
Se rendre au travail
En auto
67.7 %En transport en commun
9.73 %À pied
13.23 %À bicyclette
4.91 %Par tout autre moyen
4.43 %Diversité Culturelle
Connaissance des langues officielles
Langue maternelle
Données Sur Le Bâtiment
Type de bâtiment
Appartements (faible hauteur et à étages multiples)
25.22 %Maisons
74.78 %


















































































































