Montréal (Pierrefonds-Roxboro) QC, H8Y 3N8
Remarques :
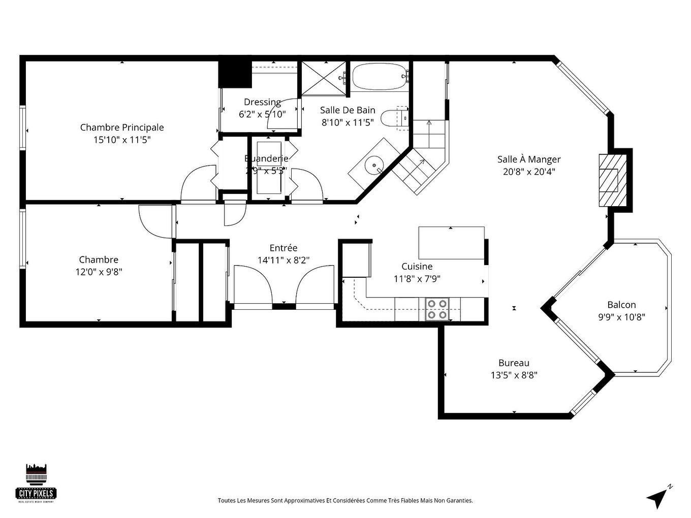
Condo de coin sur deux niveaux situé au dernier étage, offrant 1348 pi² avec une disposition ouverte et fonctionnelle. Unité lumineuse et privée comprenant une mezzanine avec grande terrasse, un balcon, deux chambres et un bureau ayant déjà servi de salle à manger. La salle de bains est équipée d'un bain et d'une douche pluie avec jets. Plusieurs rénovations: planchers, cuisine, salle de bains, foyer électrique et thermopompe pour confort. Emplacement idéal près du transport en commun, parcs, écoles, commerces et des grands axes routiers. À quelques pas d'autobus et à 5 mins du REM. Stationnement intérieur, extérieur et l'accès à la piscine.
Caractéristiques et améliorations de la propriété
* Superficie de 1 348 pi² sur deux niveaux, unité de coin située au dernier étage offrant une grande intimité, une luminosité abondante et une disposition ouverte et fonctionnelle.
* Comprend une mezzanine avec terrasse privée sur le toit, un balcon à l'étage principal, deux chambres, un bureau (anciennement salle à manger) et une salle de bain complète avec bain et douche pluie + jets.
* Rénovations effectuées : planchers, cuisine, salle de bain, ajout d'un foyer électrique et installation d'une thermopompe pour un meilleur confort et une meilleure efficacité énergétique.
* Immeuble bien géré offrant un garage intérieur, un stationnement extérieur, une piscine creusée, du stationnement pour visiteurs et des espaces communs.
Quartier & Accès au transport
* Situé à Pierrefonds / West Island, à proximité des services essentiels, parcs, écoles, épiceries et zones commerciales.
* Transport en commun à quelques pas : l'arrêt d'autobus le plus proche se trouve à environ 1 minute de marche, offrant un accès rapide au réseau de l'Ouest (notamment les lignes 208 et 356 vers plusieurs quartiers et vers Montréal-centre).
* La station REM se trouve à environ 5 minutes de marche, permettant de rejoindre le centre-ville de Montréal en environ 20 minutes.
* Accès rapide aux grands axes routiers du West Island, notamment les autoroutes 13 & 40, facilitant les déplacements quotidiens, les courses, et les trajets à travers la ville.
Résumé
Un condo clé en main, lumineux et fonctionnel sur deux niveaux, offrant des espaces extérieurs privés, plusieurs améliorations importantes, et une position d'unité de coin au dernier étage assurant tranquillité et luminosité. Sa proximité des parcs, services, transport en commun, REM et grands axes routiers en fait une option idéale pour ceux recherchant confort, mobilité et valeur durable. Convient autant pour y habiter que pour un investissement.
DESCRIPTION CADASTRALE -- PARTIES COMMUNES
1902459, 1902460, 1902461, 1902462, 1902463, 1902464, 1902465, 1902466, 19024
Inclusions: Cuisinière, lave-vaisselle, laveuse et sécheuse, Thermopompe, tous les luminaires, couvre-fenêtres et tringles à rideaux, micro-ondes et foyer électrique.
Exclusions : Réfrigérateur, étagères en mezzanine, étagères métalliques dans le garage et haut-parleurs dans la mezzanine.
Particularités du bâtiment :
- Style: Appartement
- Allée: Asphalte
- Appareils en location (mensuel): Chauffe-eau
- Armoires de cuisine: Bois
- Commodités du bâtiment et espaces communs: Piscine extérieure, Espace de stationnement pour visiteur
- Équipement disponible: Balcon privé, Détecteur d'incendie, Gicleurs, Interphone, Ouvre-porte électrique (garage), Rangement extérieur, Rangement intérieur, Thermopompe murale
- Fenestration: Aluminium
- Garage: Attaché, Chauffé, Simple largeur
- Particularités du bâtiment: Unité de coin
- Piscine: Oui
- Proximité: Autoroute, Garderie/CPE, Parc, Piste cyclable, École primaire, Réseau Express Métropolitain (REM), Train de banlieue, Transport en commun
- Revêtement: Brique
- Revêtement de la toiture: Bardeaux d'asphalte
- Salle de bains: Salle de bains attenante à la CCP, Douche indépendante
- Stationnement: Oui
- Type de fenestration: Coulissante
- Mode de chauffage: Plinthes électriques
- Énergie pour le chauffage: Électricité
- Approvisionnement en eau: Municipalité
- Système d'égouts: Municipalité
Taxes:
- Taxes municipales: 2 575 $
- Taxe scolaire: 304 $
- Taxes annuelles totales: 2 879 $
Property Assessemnt:
- Évaluation du terrain: 73 400 $
- Évaluation de l'immeuble: 312 900 $
- Évaluation totale: 386 300 $
Caractéristiques :
- Bâti en: 1990
- Chambres : 2+1
- Dimensions du terrain : 2027.00 Pieds carrés
- Frais de copropriété : 509 $ Mensuel
- Salle(s) de bains : 1
- Superficie habitable (approx): 1348.0 Pieds carrés
- Zonage: RESI
- Nbre d'espaces de stationnement: 2
Détails des pièces :
- Autre Entrée 3e niveau 4.55 m x 2.49 m 14.11 p x 8.2 p Plancher : Céramique
- Salon - Irrégulier 3e niveau 6.30 m x 6.20 m 20.8 p x 20.4 p Plancher : Bois
- Cuisine 3e niveau 3.56 m x 2.36 m 11.8 p x 7.9 p Plancher : Granite
- Bureau - Irrégulier 3e niveau 4.09 m x 2.64 m 13.5 p x 8.8 p Plancher : Bois
- Chambre principale 3e niveau 4.83 m x 3.48 m 15.10 p x 11.5 p Plancher : Bois
- Penderie (Walk-in) 3e niveau 1.88 m x 1.78 m 6.2 p x 5.10 p Plancher : Bois
- Chambre 3e niveau 3.66 m x 2.95 m 12.0 p x 9.8 p Plancher : Bois
- Salle de bains - Irrégulier 3e niveau 2.69 m x 3.48 m 8.10 p x 11.5 p Plancher : Céramique
- Salle de lavage 3e niveau 0.84 m x 1.60 m 2.9 p x 5.3 p Plancher : Céramique
- Salle familiale - Irrégulier Autre étage : Mezzanine 4.52 m x 6.10 m 14.10 p x 20.0 p Plancher : Bois
- Rangement Autre étage : Mezzanine 2.69 m x 1.52 m 8.10 p x 5.0 p Plancher : Tapis
Convertir la mesure en :
Données fournies par : Centris - 600 Ch Du Golf, Ile -Des -Soeurs, Québec H3E 1A8
Nous croyons que tous les renseignements affichés sont exacts, mais nous ne le garantissons pas; les renseignements devraient être vérifiés de façon indépendante. Aucune garantie ou représentation de quelque nature que ce soit n’est offerte. Droits© 2021 Tous les droits sont réservés.
Tendances des prix du marché immobilier
Emplacement de 301-1390 Rue Hyman, Montréal (Pierrefonds-Roxboro), QC, H8Y 3N8
Données démographiques de 301-1390 Rue Hyman, Montréal (Pierrefonds-Roxboro), QC, H8Y 3N8
Étape de vie
Parents plus âgés, enfants plus jeunesType d'emploi
MixteRevenu moyen du ménage
96 398.11 $Nombre moyen d'enfants
2,01Population à domicile
Structure à domicile
Âge de la population
Éducation
Niveau d'éducation
No certificate/diploma/degree
19.03 %Diplôme d'études secondaires ou équivalent
28.26 %Certificat ou diplôme d'apprentissage ou d'une école de métiers
9.21 %Diplôme d'études collégiales ou d'études postsecondaires (non universitaires)
17.26 %Certificat d'études universitaires
3.85 %Diplômes d'études universitaires
22.39 %Navetteur
Se rendre au travail
En auto
71.61 %En transport en commun
20.8 %À pied
4.57 %À bicyclette
0.61 %Par tout autre moyen
2.41 %Diversité Culturelle
Connaissance des langues officielles
Langue maternelle
Données Sur Le Bâtiment
Type de bâtiment
Appartements (faible hauteur et à étages multiples)
66.35 %Maisons
33.65 %






































