Gatineau (Aylmer) QC, J9J 1M2
Remarques :
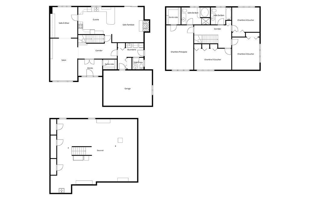
Magnifique propriété à deux étages, impeccablement entretenue, offrant plus de 2 000 pi² d'espace habitable. Elle comprend 4 chambres et 2 salles de bain complètes ainsi qu'une salle d'eau. Aire ouverte avec cuisine et salle familiale agrémentée d'un foyer au bois, salon et salle à manger distincts. Salle de lavage indépendante. Aucun tapis : planchers de bois franc et céramique. Spacieuse chambre principale avec walk-in et salle de bain attenante. Cour arrière clôturée, intime et superbement aménagée, idéale pour recevoir. Garage double attaché. Prêt de tout les services.
Rénovations et améliorations (en ordre chronologique) :
*Toiture -- 2008
*Portes-patio -- 2012
*Système d'irrigation -- ±2012
*Fenêtres -- 2013
*Porte de garage -- 2015
*Climatisation centrale -- 2015
*Chauffe-eau -- 2017
*Fournaise -- 2021
*Réservoir à mazout -- 2021
*Nouveau certificat de localisation -- 2025
Caractéristiques additionnelles :
*Située à proximité de tous les services
*Cour arrière privée
*Sous-sol non aménagé offrant un excellent potentiel pour l'ajout d'espace habitable
*Garage double
*Propriété très bien entretenue
Inclusions: Intérieur: Lustres, stores, Rideaux, Lave Vaiselle, Table dans cuisine,Fournaise, Chauffe Eau, aspirateur central,systeme d'alarme (sans service), ouvre porte garage (manette). Extéieur: Remise, Gazebo, Tables & chaises, balancoire
Exclusions : Chaise dans la cuisine, service du système d'alarme.
Particularités du bâtiment :
- Style: Maison détachée
- Air climatisé: Oui
- Allée: Asphalte
- Armoires de cuisine: Bois
- Dimensions : 10.14 x 12.32 METRE
- Équipement disponible: Installation aspirateur central, Climatiseur central, Cour privée, Ouvre-porte électrique (garage), Système d'alarme
- Fenestration: PVC
- Fondation: Béton coulé
- Foyer: Oui
- Foyer-Poêle: Foyer au bois
- Garage: Attaché, Double largeur ou plus
- Proximité: Autoroute, Garderie/CPE, Parc, École primaire, École secondaire, Transport en commun
- Revêtement: Brique
- Salle de bains: Salle de bains attenante à la CCP, Douche indépendante
- Sous-sol: Non aménagé
- Stationnement: Oui
- Terrain: Clôturé, Paysager
- Topographie: Plat
- Type de fenestration: Manivelle (battant)
- Mode de chauffage: Air soufflé (pulsé)
- Énergie pour le chauffage: Mazout
- Approvisionnement en eau: Municipalité
- Système d'égouts: Municipalité
Taxes:
- Taxes municipales: 5 377 $
- Taxe scolaire: 497 $
- Taxes annuelles totales: 5 874 $
Property Assessemnt:
- Évaluation du terrain: 226 600 $
- Évaluation de l'immeuble: 488 500 $
- Évaluation totale: 715 100 $
Caractéristiques :
- Bâti en: 1988
- Chambres : 4
- Dimensions du terrain : 670.30 Mètres carrés
- Largeur du terrain en façade : 18.29 Mètre
- Profondeur du terrain : 36.67 Mètre
- Salle(s) de bains : 2
- Salle(s) d'eau : 1
- Superficie habitable (approx): 208.3 Mètres carrés
- Zonage: RESI
- Nbre d'espaces de stationnement: 4
Détails des pièces :
- Hall d'entrée Rez-de-chaussée 2.13 m x 3.00 m 7.0 p x 9.10 p Plancher : Céramique Note: Porte Francaise,Walk in
- Salon Rez-de-chaussée 3.35 m x 5.49 m 11.0 p x 18.0 p Plancher : Bois
- Salle à dîner - Irrégulier Rez-de-chaussée 3.66 m x 3.35 m 12.0 p x 11.0 p Plancher : Bois
- Cuisine Rez-de-chaussée 3.66 m x 3.58 m 12.0 p x 11.9 p Plancher : Linoléum
- Salle familiale Rez-de-chaussée 4.27 m x 4.06 m 14.0 p x 13.4 p Plancher : Céramique Note: Foyer Bois/Acces Garage
- Salle de lavage - Irrégulier Rez-de-chaussée 1.85 m x 4.04 m 6.1 p x 13.3 p Plancher : Céramique
- Salle d'eau Rez-de-chaussée 1.45 m x 1.50 m 4.9 p x 4.11 p Plancher : Céramique
- Chambre 2e niveau 3.23 m x 3.33 m 10.7 p x 10.11 p Plancher : Bois
- Salle de bains - Irrégulier 2e niveau 2.36 m x 2.54 m 7.9 p x 8.4 p Plancher : Céramique
- Chambre 2e niveau 3.94 m x 3.33 m 12.11 p x 10.11 p Plancher : Bois
- Chambre 2e niveau 2.59 m x 4.83 m 8.6 p x 15.10 p Plancher : Bois
- Chambre 2e niveau 5.51 m x 3.48 m 18.1 p x 11.5 p Plancher : Bois Note: Walk in 6.5 x8
- Salle de bains 2e niveau 2.36 m x 3.66 m 7.9 p x 12.0 p Plancher : Bois Note: Bain & Douche
- Atelier Sous-sol 4.39 m x 7.39 m 14.5 p x 24.3 p Plancher : Béton
Convertir la mesure en :
Données fournies par : Centris - 600 Ch Du Golf, Ile -Des -Soeurs, Québec H3E 1A8
Nous croyons que tous les renseignements affichés sont exacts, mais nous ne le garantissons pas; les renseignements devraient être vérifiés de façon indépendante. Aucune garantie ou représentation de quelque nature que ce soit n’est offerte. Droits© 2021 Tous les droits sont réservés.
Tendances des prix du marché immobilier
Emplacement de 231 Av. des Explorateurs, Gatineau (Aylmer), QC, J9J 1M2
Données démographiques de 231 Av. des Explorateurs, Gatineau (Aylmer), QC, J9J 1M2
Étape de vie
Parents d'âge moyen avec adolescentsType d'emploi
MixteRevenu moyen du ménage
124 399.60 $Nombre moyen d'enfants
1,66Population à domicile
Structure à domicile
Âge de la population
Éducation
Niveau d'éducation
No certificate/diploma/degree
15.3 %Diplôme d'études secondaires ou équivalent
24.04 %Certificat ou diplôme d'apprentissage ou d'une école de métiers
9.41 %Diplôme d'études collégiales ou d'études postsecondaires (non universitaires)
19.11 %Certificat d'études universitaires
2.82 %Diplômes d'études universitaires
29.32 %Navetteur
Se rendre au travail
En auto
71.35 %En transport en commun
12.49 %À pied
6.65 %À bicyclette
0.16 %Par tout autre moyen
9.35 %Diversité Culturelle
Connaissance des langues officielles
Langue maternelle
Données Sur Le Bâtiment
Type de bâtiment
Appartements (faible hauteur et à étages multiples)
41.81 %Maisons
58.19 %




















































































