Châteauguay QC, J6J 1W4
Remarques :
Charmante maison de 4 chambres et 2 salles de bains, avec salle d'eau, située dans un quartier paisible de Châteauguay. Plan lumineux et fonctionnel offrant un salon chaleureux avec foyer au bois, une salle à manger ouverte sur la cuisine, ainsi qu'un sous-sol polyvalent comprenant salle familiale, salle de jeux (poêle à combustion lente) et buanderie. Profitez d'une cour arrière intime avec piscine au sel chauffée (thermopompe dédiée), terrasse et espace vert. Atout supplémentaire : salle électrique/mécanique avec espace atelier. À proximité des parcs, écoles, commerces, cafés et restaurants , parfait pour la vie de famille.
Bienvenue au 173 rue des Marguerites, une demeure chaleureuse et invitante située dans un quartier recherché de Châteauguay. Cette charmante propriété de 4 chambres, 2 salles de bain et 1 salle d'eau allie le cachet d'origine au confort moderne dans une disposition pratique et familiale. Avec ses pièces lumineuses, son foyer au bois et sa cour arrière aménagée, elle offre un cadre idéal pour une vie de famille harmonieuse.
**Caractéristiques de la propriété**
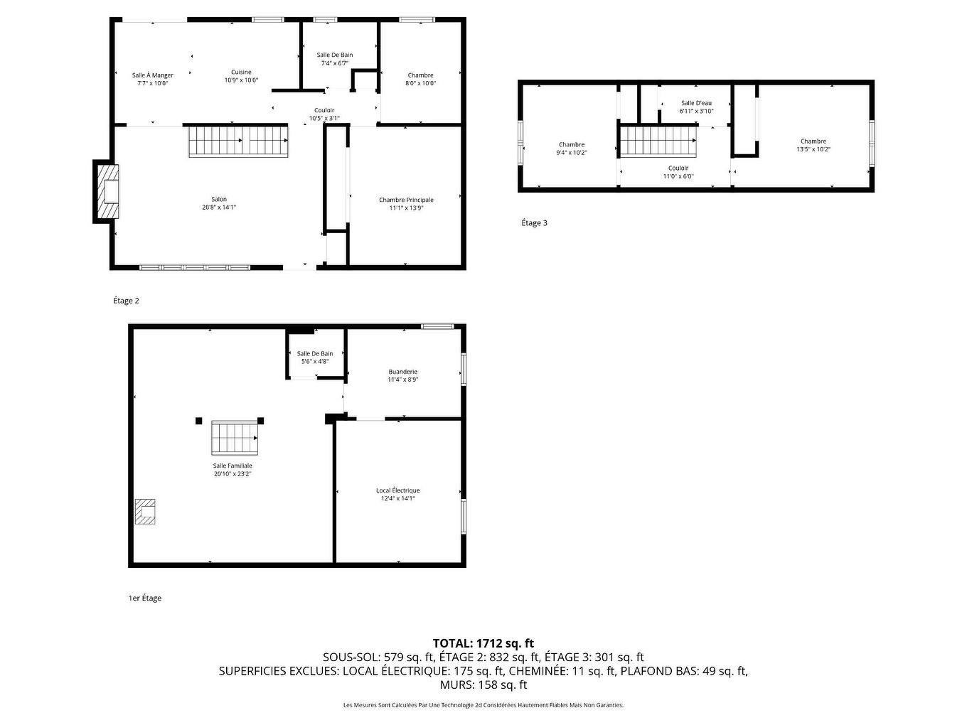
* Aménagement spacieux sur trois niveaux, conçu pour la vie familiale et la détente
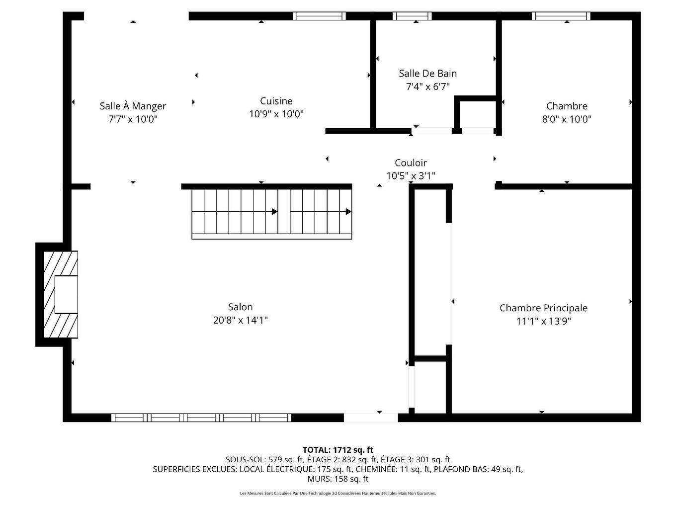
* Rez-de-chaussée à aire ouverte comprenant un salon avec foyer au bois, une salle à manger et une cuisine conviviale
* Deux chambres au rez-de-chaussée, dont la chambre principale, partageant une salle de bain complète
* Étage supérieur avec deux autres chambres et une salle d'eau -- parfait pour les enfants ou les invités
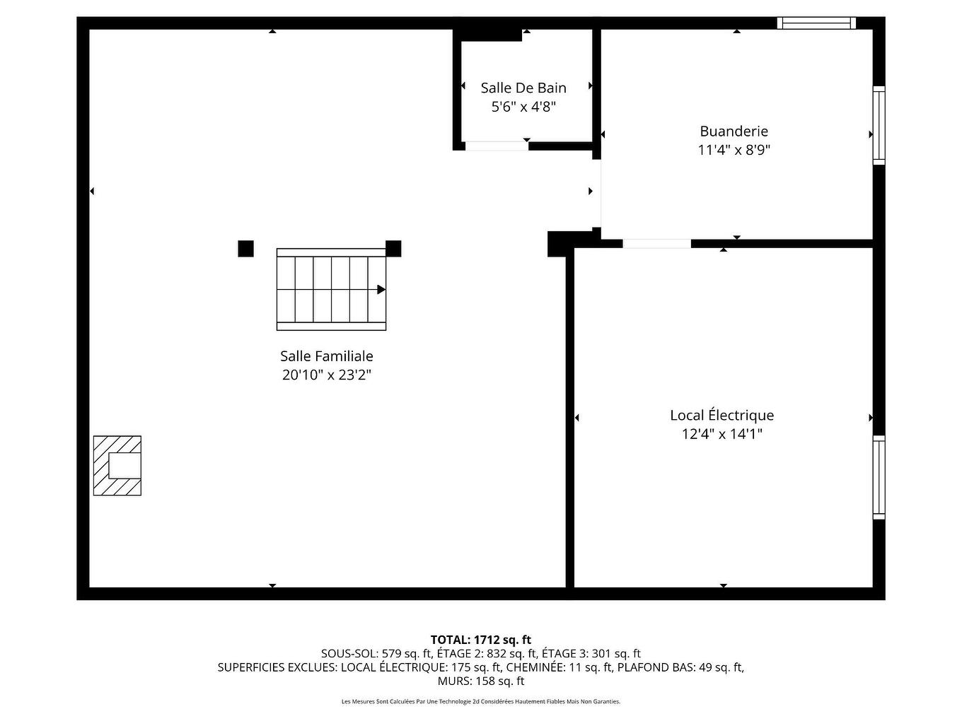
* Sous-sol comprenant une grande salle familiale polyvalente, une deuxième salle de bain avec douche en verre et une salle de lavage séparée
* Cour arrière paisible avec patio idéal pour les repas extérieurs, piscine creusée au sel, remise et espace gazonné pour les enfants
* Détails architecturaux d'origine -- moulures, planchers de bois -- préservés pour un charme intemporel
* Espaces baignés de lumière naturelle et circulation fluide pour un confort quotidien
**Emplacement de choix**
* Secteur paisible et familial de Châteauguay, reconnu pour son ambiance conviviale et sa proximité avec tous les services
* À quelques minutes de Super C, Metro et des marchés locaux pour vos courses quotidiennes
* Cafés et restaurants à proximité, tels que Victoria Café, La Chopinerie et Café de l'Île, ainsi que plusieurs bistros, restos familiaux et bars à sushi
* À deux pas du Centre Régional Châteauguay, offrant une variété de boutiques et de services
* Parcs et espaces verts à proximité : Parc Marcel-Seers, Parc Roméo-Bourcier, Parc Joseph-Laberge, ainsi que les sentiers pittoresques longeant la rivière Châteauguay et le lac Saint-Louis
* Écoles, garderies, installations sportives et bibliothèque municipale facilement accessibles -- idéal pour les familles
* Accès rapide à Montréal grâce aux grands axes routiers et au transport en commun
**Pourquoi acheter cette propriété ?**
* Allie la tranquillité de la banlieue à la proximité des commodités urbaines
* Disposition polyvalente offrant des espaces de vie sur plusieurs niveaux et un sous-sol flexible selon vos besoins
* Cour arrière privée avec piscine creusée et patio : un véritable havre de paix pour relaxer ou recevoir
* Maison entretenue avec soin, conservant son charme d'origine et prête à emménager
* Une opportunité rare d'acquérir une propriété confortable, accueillante et parfaitement située à Châteauguay
Inclusions: Laveuse, sécheuse, réfrigérateur, cuisinière, lave-vaisselle, réfrigérateur dans atelier, accessoires de piscine, chauffe-eau au sel de piscine, chaises extérieures, pergola
Exclusions : Bien du propriétaire
Particularités du bâtiment :
- Style: Maison détachée
- Air climatisé: Oui
- Allée: Asphalte
- Dimensions : 10.81 x 7.84 METRE
- Équipement disponible: Climatiseur central, Thermopompe centrale
- Fenestration: Aluminium, PVC
- Fondation: Béton coulé
- Foyer: Oui
- Foyer-Poêle: Foyer au bois
- Garage: Attaché, Simple largeur
- Piscine: Oui
- Proximité: Golf, Parc, Piste cyclable, École primaire, École secondaire, Ski de fond, Transport en commun
- Revêtement: Aluminium, Bois
- Revêtement de la toiture: Bardeaux d'asphalte
- Sous-sol: 6 pieds et plus, Totalement aménagé
- Stationnement: Oui
- Terrain: Clôturé
- Type de fenestration: Coulissante
- Mode de chauffage: Air soufflé (pulsé)
- Énergie pour le chauffage: Biénergie
- Approvisionnement en eau: Municipalité
- Système d'égouts: Municipalité
Taxes:
- Taxes municipales: 4 240 $
- Taxe scolaire: 320 $
- Taxes annuelles totales: 4 560 $
Property Assessemnt:
- Évaluation du terrain: 195 100 $
- Évaluation de l'immeuble: 326 600 $
- Évaluation totale: 521 700 $
Caractéristiques :
- Bâti en: 1960
- Chambres : 4
- Dimensions du terrain : 557.40 Mètres carrés
- Largeur du terrain en façade : 18.29 Mètre
- Profondeur du terrain : 30.48 Mètre
- Salle(s) de bains : 2
- Salle(s) d'eau : 1
- Zonage: RESI
- Nbre d'espaces de stationnement: 4
Détails des pièces :
- Salon Rez-de-chaussée 6.30 m x 4.29 m 20.8 p x 14.1 p
- Cuisine Rez-de-chaussée 3.28 m x 3.05 m 10.9 p x 10.0 p
- Salle à dîner Rez-de-chaussée 2.31 m x 3.05 m 7.7 p x 10.0 p
- Chambre principale Rez-de-chaussée 3.38 m x 4.19 m 11.1 p x 13.9 p
- Chambre Rez-de-chaussée 2.44 m x 3.05 m 8.0 p x 10.0 p
- Salle de bains Rez-de-chaussée 2.24 m x 2.01 m 7.4 p x 6.7 p
- Chambre 2e niveau 2.84 m x 3.10 m 9.4 p x 10.2 p
- Chambre 2e niveau 4.09 m x 3.10 m 13.5 p x 10.2 p
- Salle d'eau 2e niveau 2.11 m x 1.17 m 6.11 p x 3.10 p
- Salle familiale Sous-sol 6.35 m x 7.06 m 20.10 p x 23.2 p
- Salle de lavage Sous-sol 3.45 m x 2.67 m 11.4 p x 8.9 p
- Autre Local électrique Sous-sol 3.76 m x 4.29 m 12.4 p x 14.1 p
- Salle de bains Sous-sol 1.68 m x 1.42 m 5.6 p x 4.8 p
Convertir la mesure en :
Données fournies par : Centris - 600 Ch Du Golf, Ile -Des -Soeurs, Québec H3E 1A8
Nous croyons que tous les renseignements affichés sont exacts, mais nous ne le garantissons pas; les renseignements devraient être vérifiés de façon indépendante. Aucune garantie ou représentation de quelque nature que ce soit n’est offerte. Droits© 2021 Tous les droits sont réservés.
Tendances des prix du marché immobilier
Emplacement de 173 Rue des Marguerites, Châteauguay, QC, J6J 1W4
Données démographiques de 173 Rue des Marguerites, Châteauguay, QC, J6J 1W4
Étape de vie
Personnes presque retraitéesType d'emploi
MixteRevenu moyen du ménage
120 207.74 $Nombre moyen d'enfants
1,90Population à domicile
Structure à domicile
Âge de la population
Éducation
Niveau d'éducation
No certificate/diploma/degree
16.51 %Diplôme d'études secondaires ou équivalent
31.01 %Certificat ou diplôme d'apprentissage ou d'une école de métiers
13.6 %Diplôme d'études collégiales ou d'études postsecondaires (non universitaires)
20.49 %Certificat d'études universitaires
1.89 %Diplômes d'études universitaires
16.5 %Navetteur
Se rendre au travail
En auto
87.18 %En transport en commun
9.74 %À pied
1.19 %À bicyclette
0.0 %Par tout autre moyen
1.89 %Diversité Culturelle
Connaissance des langues officielles
Langue maternelle
Données Sur Le Bâtiment
Type de bâtiment
Appartements (faible hauteur et à étages multiples)
6.94 %Maisons
93.06 %


















































































