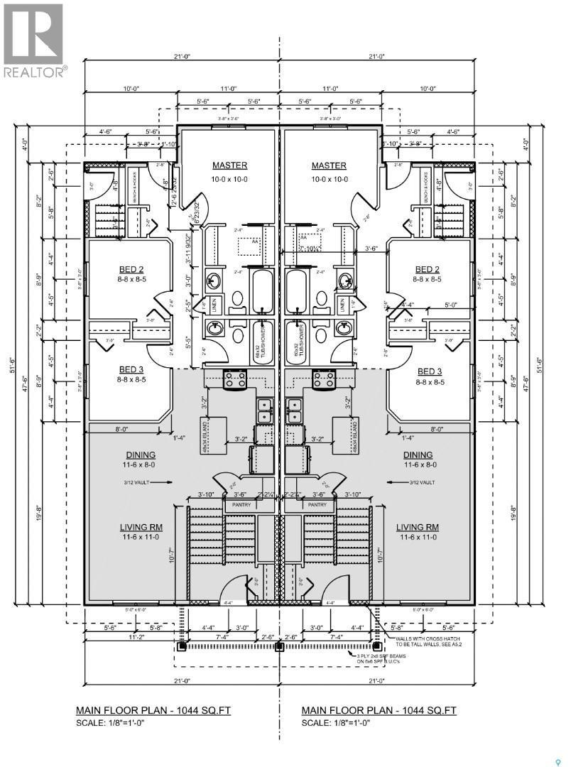
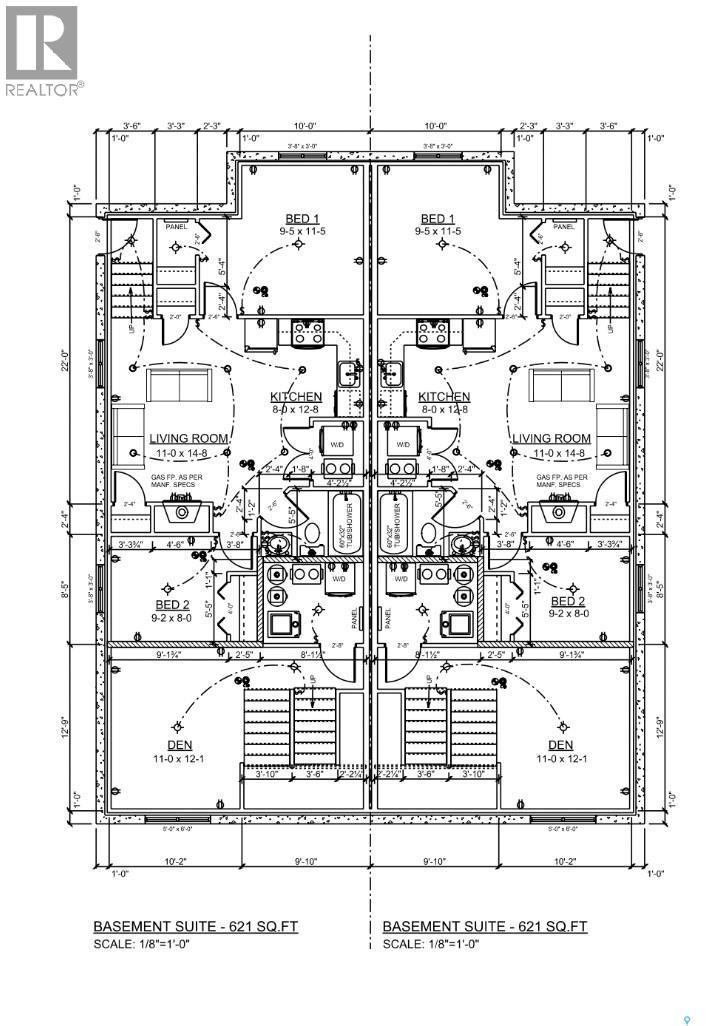
Maison À vendre à Aspen Ridge, Saskatoon, Saskatchewan
1 049 900 $ ÉvaluationExpressMC: Non disponible10 Chambres
6 Salles de bain
-
Détails
-
Carte
-
Données démographiques
-
Vue de la rue
-
Itinéraire
-
Publicité




