1146 Nightingale TERRACE, Saskatoon, Saskatchewan, S7L 6P4
598 467 $No. MLS® SK026135
Maison À vendre à Kensington, Saskatoon, Saskatchewan
598 467 $
3
Chambres
2
Salles de bain
-
4122.84 Pieds carrés
Dimension du terrain
Remarques :
(id:27)
Particularités du bâtiment :
- Style: Maison détachée
- Type de bâtiment: Unifamiliale
- Alimentation du foyer: Électricité
- État du sous-sol: Non aménagé
- Foyer: Oui
- Stationnement: Oui
- Surface utile: 1490 sqft
- Type d'architecture: Logement avec entrée à mi-étage
- Type de foyer: Conventionnel
- Type de sous-sol: Sous-sol complet
- Type de chauffage: Air pulsé
- Combustible de chauffage: Gaz naturel
- Électroménagers: Télécommande(s) d'ouvre-porte de garage
Caractéristiques :
- Type de possession: Tenure franche
- Type de propriété: Unifamiliale
- Bâti en: 2026
- Caractéristiques: Boisé, Rectangulaire, Voie d'accès pour deux autos ou plus, Pompe de vidange
- Chambres : 3
- Dimensions du terrain : 4122.84 Pieds carrés
- Irregular: Oui
- Largeur du terrain en façade : 34 Pieds
- Salle(s) de bains : 2
- Superficie habitable (approx): 1490 Pieds carrés
- Type de structure: Terrasse
- Type de stationnement: Garage attenant, Places de stationnement
- Nbre d'espaces de stationnement: 4
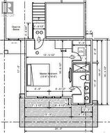
Détails des pièces :
- Chambre 2e niveau 15ft x 13ft
- Salle de bains 2e niveau 11ft x 5ft
- Autre Sous-sol 43ft x 21ft
- Hall d'entrée Niveau rez-de-chaussée 4ft x 10ft
- Salon Niveau rez-de-chaussée 19ft x 12ft
- Salle à dîner Niveau rez-de-chaussée 11ft x 10ft
- Cuisine Niveau rez-de-chaussée 11ft x 12ft
- Chambre Niveau rez-de-chaussée 11ft x 9ft
- Salle de bains Niveau rez-de-chaussée 6ft x 7ft
- Chambre Niveau rez-de-chaussée 9ft x 10ft
Gracieuseté de : Realty ONE Group Dynamic
Le contenu des inscriptions fournies par REALTOR.ca a été autorisé par les membres de l'Association canadienne de l'immeuble.
Le contenu de cette inscription est fourni par REALTOR.ca et a été autorisé par les membres de l'Association canadienne de l'immeuble.
Photos supplémentaires


