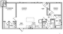
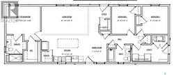
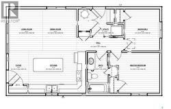
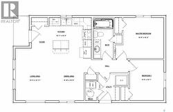
3 Miller STREET, Redvers, Saskatchewan, S0C 2H0
19 900 $No. MLS® SK027371
Le contenu de cette inscription est fourni par REALTOR.ca et a été autorisé par les membres de l'Association canadienne de l'immeuble.
Photos supplémentaires
















