Statut:

Copropriété à Angrignon, Montréal (Le Sud-Ouest), Québec

 
  • 2

    Chambres

  • 1

    Salles de bain

  • $181

    Frais de copropriété

Remarques :

Magnifique condo lumineux sur deux niveaux, idéalement situé dans un environnement des plus recherchés. Située directement en face du métro et du parc Angrignon, cette propriété offre une combinaison rare d'espace, de lumière et de commodité. L'unité comprend deux grandes chambres, deux balcons, ainsi qu'un stationnement intérieur et extérieur. Le Carrefour Angrignon, de nombreux commerces, services et commodités se trouvent à seulement quelques minutes, accessibles facilement à pied ou en voiture. Une occasion unique et extrêmement rare s'offre également d'acquérir l'unité 2, qui partage une entrée commune privée sans autre unité.

Être propriétaire des deux unités permettrait un usage exclusif et un accès à un espace de vie combiné, idéal pour un projet intergénérationnel, une occupation de type maison de ville ou d'autres besoins résidentiels polyvalents.
L'unité 2 est située sur un seul niveau, comprend deux chambres à coucher ainsi qu'un stationnement intérieur et extérieur, offrant la même commodité et fonctionnalité que l'unité principale.

Exclusions : Chauffe eau loué

Particularités du bâtiment :

  • Style: Appartement
  • Appareils en location (mensuel): Chauffe-eau
  • Équipement disponible: Ouvre-porte électrique (garage), Thermopompe murale
  • Foyer: Oui
  • Foyer-Poêle: Foyer au bois
  • Garage: Intégré
  • Proximité: Autoroute, Cégep, Garderie/CPE, Hôpital, Métro, Parc, Piste cyclable, École primaire, École secondaire, Transport en commun
  • Stationnement: Oui
  • Mode de chauffage: Plinthes électriques
  • Énergie pour le chauffage: Électricité
  • Approvisionnement en eau: Municipalité
  • Système d'égouts: Municipalité

Taxes:

  • Taxes municipales: 2 169 $
  • Taxe scolaire: 260 $
  • Taxes annuelles totales: 2 429 $

Évaluation :

  • Évaluation du terrain: 67 400 $
  • Évaluation de l'immeuble: 265 800 $
  • Évaluation totale: 333 200 $

Caractéristiques :

  • Bâti en: 1984
  • Chambres : 2
  • Frais de copropriété : 181 $ Mensuel
  • Salle(s) de bains : 1
  • Superficie habitable (approx): 85.1 Mètres carrés
  • Zonage: RESI
  • Nbre d'espaces de stationnement: 3

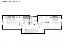
Détails des pièces :

  • Salon 2e niveau 4.32 m x 3.28 m Plancher : Parqueterie
  • Salle à dîner 2e niveau 3.28 m x 2.69 m Plancher : Parqueterie
  • Cuisine 2e niveau 3.28 m x 2.64 m Plancher : Linoléum
  • Chambre principale 3e niveau 4.83 m x 3.30 m Plancher : Couvre-sols souples
  • Chambre 3e niveau 3.40 m x 3.30 m Plancher : Couvre-sols souples
  • Salle de bains 3e niveau 2.29 m x 1.52 m Plancher : Céramique
  • Rangement 3e niveau 1.83 m x 1.04 m Plancher : Couvre-sols souples

Gracieuseté de : Royal LePage Village

Données fournies par : Centris - 600 Ch Du Golf, Ile -Des -Soeurs, Québec H3E 1A8
Nous croyons que tous les renseignements affichés sont exacts, mais nous ne le garantissons pas; les renseignements devraient être vérifiés de façon indépendante. Aucune garantie ou représentation de quelque nature que ce soit n’est offerte. Droits© 2021 Tous les droits sont réservés.

  • Salon -
  • Salon -
  • Salon -
  • Salon -
  • Salon -
  • Salle à manger -
  • Autre -
  • Autre -
  • Cuisine -
  • Cuisine -
  • Cuisine -
  • Autre -
  • Autre -
  • Chambre à coucher principale -
  • Chambre à coucher principale -
  • Chambre à coucher principale -
  • Chambre à coucher principale -
  • Chambre à coucher -
  • Chambre à coucher -
  • Chambre à coucher -
  • Chambre à coucher -
  • Salle de bains -
  • Autre -
  • Balcon -
  • Autre -
  • Garage -
  • Garage -
  • Face arrière -
  • Face arrière -
  • Façade -
  • Autre -
  • Autre -
  • Photo aérienne -