948 000 $

Copropriété À vendre à Mile-End, Montréal (Le Plateau-Mont-Royal), Québec

948 000 $
  • 3

    Chambres

  • 1+1

    Salles de bain

  • $312

    Frais de copropriété

Remarques :

***5830 PARC*** Calme, tranquillité et luminosité résument parfaitement cette superbe unité de + de 1600pi2 nichée au dernier étage d'un immeuble centenaire situé en plein coeur du Mile-End. Immense aire de vie totalement ouverte. Cuisine contemporaine et rénovée. Belle hauteur sous plafonds. Briques apparentes. Superbes planchers nivelés. 3 belles chambres spacieuses dont 2 avec balcons privés. Salle de bains moderne. Superbe vue sur la montagne. Stationnement extérieur privatif. Usage exclusif du toit. À deux pas de Bernard, de ses commerces et de tout ce que le Mile-End peut offrir et aux portes d'Outremont, de ses parcs et de ses écoles.

***5830 PARC***

Calme, tranquillité et luminosité, résument parfaitement cette superbe unité de plus de 1600pi2 nichée au dernier étage d'un immeuble INDIVIS centenaire (et très bien géré) situé en plein coeur du Mile-End.

Immense aire de vie lumineuse et totalement ouverte.
Cuisine contemporaine ouvrant sur un des 3 balcons.

Belle hauteur sous plafonds.
Briques apparentes.

3 belles chambres spacieuses dont 2 ouvrent sur des balcons privés.
Salle de bains moderne.

Superbe vue sur la montagne.
Stationnement extérieur privatif.
Usage exclusif du toit.

À deux pas de Bernard, de ses commerces et de tout ce que le Mile-End peut offrir et aux portes d'Outremont, de ses parcs et de ses écoles.


Copropriété Indivise très bien gérée avec un peu plus de 45.000$ dans le fonds de prévoyance.


Le financement devra se faire auprès de la Caisse Desjardins des Versants du Mont-Royal.
Un nouveau certificat de localisation a été commandé est sera livré pour l'acte de vente.


Note :
L'unité est située dans un immeuble indivis et de ce fait, les taxes scolaires et municipales correspondent au total de taxes pour TOUT l'immeuble. La quote part de l'unité étant de 27,8%, les montants de taxes correspondant à l'unité se détaillent comme suit :

Taxes municipales : $2787
Taxes scolaires : $356
Frais de copropriété : 312$

Inclusions: Cuisinière / Lave-Vaisselle / Hotte / Réfrigérateur / Laveuse / Sécheuse / Luminaires / Placards Peints (Entrée, Chambre Principale, Chambres, Salle de bains), Stores.

Exclusions : Biens et accessoires des vendeurs.

Particularités du bâtiment :

  • Style: Appartement
  • Air climatisé: Oui
  • Allée: Asphalte
  • Équipement disponible: Balcon privé, Climatiseur mural, Détecteur d'incendie
  • Fenestration: PVC
  • Installation laveuse-sécheuse: Salle de bains
  • Proximité: Autoroute, Cégep, Garderie/CPE, Hôpital, Métro, Parc, Piste cyclable, École primaire, Réseau Express Métropolitain (REM), École secondaire, Train de banlieue, Transport en commun, Université
  • Restrictions/Permissions: Location court terme non permise
  • Revêtement: Béton, Bois, Brique
  • Revêtement de la toiture: Membrane élastomère
  • Salle de bains: Douche indépendante
  • Stationnement: Oui
  • Stationnement cadastré: Allée
  • Type de fenestration: Guillotine, Manivelle (battant)
  • Vue: Sur la montagne, Sur la ville
  • Mode de chauffage: Plinthes électriques
  • Énergie pour le chauffage: Électricité
  • Approvisionnement en eau: Municipalité
  • Système d'égouts: Municipalité

Taxes:

  • Taxes municipales: 3 065 $
  • Taxe scolaire: 391 $
  • Taxes annuelles totales: 3 456 $

Caractéristiques :

  • Bâti en: 1910
  • Chambres : 3
  • Frais de copropriété : 312 $ Mensuel
  • Salle(s) de bains : 1
  • Salle(s) d'eau : 1
  • Superficie habitable (approx): 1600.0 Pieds carrés
  • Zonage: RESI
  • Nbre d'espaces de stationnement: 1

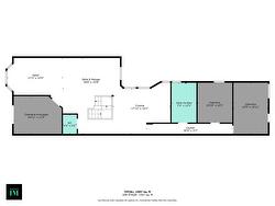
Détails des pièces :

  • Hall d'entrée - Irrégulier 3e niveau 3.50 m x 3.50 m Plancher : Bois
  • Salon - Irrégulier 3e niveau 6.80 m x 4.30 m Plancher : Bois
  • Salle à dîner - Irrégulier 3e niveau 4.40 m x 4.30 m Plancher : Bois Note: + Balcon
  • Cuisine - Irrégulier 3e niveau 5.70 m x 4.30 m Plancher : Céramique
  • Chambre principale - Irrégulier 3e niveau 4.90 m x 3.10 m Plancher : Bois Note: + Balcon
  • Salle d'eau - Irrégulier 3e niveau 1.80 m x 1.0 m Plancher : Céramique
  • Chambre - Irrégulier 3e niveau 3.60 m x 3.20 m Plancher : Bois
  • Chambre - Irrégulier 3e niveau 5.50 m x 3.60 m Plancher : Bois Note: + Balcon
  • Salle de bains - Irrégulier 3e niveau 3.0 m x 2.45 m Plancher : Céramique

Gracieuseté de : Royal LePage Heritage

Données fournies par : Centris - 600 Ch Du Golf, Ile -Des -Soeurs, Québec H3E 1A8
Nous croyons que tous les renseignements affichés sont exacts, mais nous ne le garantissons pas; les renseignements devraient être vérifiés de façon indépendante. Aucune garantie ou représentation de quelque nature que ce soit n’est offerte. Droits© 2021 Tous les droits sont réservés.

  • Cuisine -
  • Cuisine -
  • Cuisine -
  • Cuisine -
  • Cuisine -
  • Cuisine -
  • Cuisine -
  • Salle à manger -
  • Salle à manger -
  • Salle à manger -
  • Salon -
  • Salon -
  • Salle à manger -
  • Salon -
  • Salon -
  • Salon -
  • Salle à manger -
  • Corridor -
  • Cuisine -
  • Hall d'entrée/Vestibule -
  • Chambre à coucher principale -
  • Chambre à coucher principale -
  • Chambre à coucher principale -
  • Salle de bains -
  • Salle de bains -
  • Chambre à coucher -
  • Chambre à coucher -
  • Chambre à coucher -
  • Chambre à coucher -
  • Plan (croquis) -
  • Balcon -
  • Stationnement -
  • Façade -
  • Façade -
  • Vue -
  • Vue -
  • Vue -
  • Vue -
  • Vue -