629 900 $

Investissement À vendre à Gatineau (Hull), Québec

629 900 $

Remarques :

Joli triplex sur l'Île de Hull dans un secteur très en demande. Près de tous les services et à distance de marche du quartier du vieux Hull et de ses restaurants, des ponts menant à Ottawa et du Parc Jacques Cartier et de la rivière des Outaouais. Parfait pour propriétaire occupant ou investissement. Les 3 appartements ont leur prises laveuse & sécheuse. À voir absolument!!!!

Inclusions: Tous les meubles et électros ménagers des 2 appartements vacants, 3 réservoirs d'eau chaude, 3 A/C amovibles

Particularités du bâtiment :

  • Style: Triplex
  • Allée: Asphalte
  • Dimensions : 20.47 x 6.26 METRE
  • Fenestration: Bois, PVC
  • Fondation: Béton coulé
  • Plancher séparateur: Bois
  • Proximité: Autoroute, Garderie/CPE, Hôpital, Parc, Piste cyclable, École primaire, École secondaire, Transport en commun
  • Revêtement: Aluminium
  • Revêtement de la toiture: Tôle
  • Stationnement: Oui
  • Topographie: En pente, Plat
  • Type de fenestration: Coulissante
  • Mode de chauffage: Plinthes à convection, Plinthes électriques
  • Énergie pour le chauffage: Électricité
  • Approvisionnement en eau: Municipalité
  • Système d'égouts: Municipalité

Revenus bruts potentiels :

  • Résidentiels : 46 800 $

Taxes:

  • Taxes municipales: 3 715 $
  • Taxe scolaire: 269 $
  • Taxes annuelles totales: 3 984 $

Évaluation :

  • Évaluation du terrain: 176 300 $
  • Évaluation de l'immeuble: 203 600 $
  • Évaluation totale: 379 900 $

Caractéristiques :

  • Bâti en: 1945
  • Chambres : 2
  • Dimensions du terrain : 220.40 Mètres carrés
  • Irregular: Oui
  • Largeur du terrain en façade : 10.87 Mètre
  • Profondeur du terrain : 20.28 Mètre
  • Salle(s) de bains : 1
  • Superficie habitable (approx): 1345.8 Pieds carrés
  • Zonage: RESI
  • Nbre d'espaces de stationnement: 3

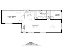
Détails des pièces :

  • Cuisine Rez-de-chaussée 3.05 m x 5.74 m Plancher : Céramique
  • Salon Rez-de-chaussée 1.85 m x 3.86 m Plancher : Plancher flottant
  • Chambre principale Rez-de-chaussée 2.90 m x 3.17 m Plancher : Plancher flottant
  • Chambre Rez-de-chaussée 2.01 m x 3.17 m Plancher : Plancher flottant
  • Salle de bains Rez-de-chaussée 1.85 m x 1.80 m Plancher : Céramique
  • Salon Sous-sol 4.50 m x 3.17 m Plancher : Plancher flottant
  • Salle à dîner Sous-sol 3.86 m x 3.28 m Plancher : Plancher flottant
  • Cuisine Sous-sol 3.66 m x 2.26 m Plancher : Plancher flottant
  • Chambre principale Sous-sol 4.95 m x 3.17 m Plancher : Plancher flottant
  • Chambre Sous-sol 2.54 m x 2.26 m Plancher : Plancher flottant
  • Salle de bains Sous-sol 2.95 m x 2.26 m Plancher : Céramique
  • Cuisine 2e niveau 3.30 m x 4.32 m Plancher : Plancher flottant Note: Salle à manger
  • Salle de lavage 2e niveau 2.69 m x 1.19 m Plancher : Plancher flottant
  • Chambre principale 2e niveau 3.30 m x 5.56 m Plancher : Plancher flottant
  • Salle de bains 2e niveau 1.12 m x 2.29 m Plancher : Céramique

Unités à revenu :

  • Pièces 5
  • Chambres 2
  • Salles de bain 1
  • Pièces 4
  • Chambres 2
  • Salles de bain 1
  • Pièces 2
  • Chambres 1
  • Salles de bain 1

Gracieuseté de : Royal LePage Vallée De L'Outaouais

Données fournies par : Centris - 600 Ch Du Golf, Ile -Des -Soeurs, Québec H3E 1A8
Nous croyons que tous les renseignements affichés sont exacts, mais nous ne le garantissons pas; les renseignements devraient être vérifiés de façon indépendante. Aucune garantie ou représentation de quelque nature que ce soit n’est offerte. Droits© 2021 Tous les droits sont réservés.

  • Cuisine -
  • Salle à manger -
  • Salle à manger -
  • Salon -
  • Salon -
  • Chambre à coucher -
  • Chambre à coucher -
  • Salle de bains -
  • Salle de bains -
  • Chambre à coucher -
  • Salle de bains -
  • Cuisine -
  • Cuisine -
  • Salon -
  • Chambre à coucher -
  • Chambre à coucher -
  • Chambre à coucher -
  • Chambre à coucher -
  • Cuisine -
  • Cuisine -
  • Chambre à coucher -
  • Cour -
  • Façade -
  • Cour -
  • Remise -
  • Plan (croquis) -
  • Plan (croquis) -
  • Plan (croquis) -
  • Hall d'entrée/Vestibule -
  • Cuisine -
  • Vue d'ensemble -
  • Chambre à coucher -
  • Hall d'entrée/Vestibule -
  • Hall d'entrée/Vestibule -
  • Hall d'entrée/Vestibule -
  • Cuisine -
  • Chambre à coucher -
  • Salle de bains -
  • Salle de bains -