1 088 000 $

Maison À vendre à Beaconsfield Heights, Beaconsfield, Québec

1 088 000 $
  • 4

    Chambres

  • 3+1

    Salles de bain

  • 7000.00 Pieds carrés

    Dimension du terrain

Remarques :

Une propriété unique située sur l'une des rues les plus recherchées de Sherwood. La cour arrière est un véritable havre estival avec piscine creusée, chute d'eau et plongeoir, terrasse en pavé-uni avec gazebo, cuisine extérieure, jardins de vivaces luxuriants, étang à poissons et espace vert pour jouer ou se détendre. À l'intérieur, la spacieuse chambre principale offre une s. de bains attenante rénovée et un walk-in, accompagnée de 2 autres chambres et d'une s. de bains familiale. Le sous-sol aménagé comprend une 4e chambre, une s. de bains complète et une s. de lavage. À proximité des parcs, écoles, transports en commun et autoroutes.

Bienvenue au 316, rue London, idéalement situé sur l'une des rues les plus prestigieuses de Sherwood. Cette propriété impeccablement entretenue offre un parfait équilibre entre confort, fonctionnalité et art de vivre extérieur de style resort.

Découvrez une véritable oasis estivale dans la cour arrière, pensée autant pour recevoir que pour profiter du quotidien. Le terrain paysager comprend une piscine creusée avec plongeoir et chute d'eau, une terrasse en pavé-uni avec gazebo, un bel espace gazonné idéal pour une balançoire ou pour laisser courir le chien, un cabanon, de magnifiques jardins de vivaces, un paisible étang à poissons, ainsi qu'une cuisine extérieure entièrement équipée avec BBQ, mini-réfrigérateur et comptoirs de granit.

À l'intérieur, l'étage offre une spacieuse chambre principale avec salle de bains attenante rénovée et walk-in, deux autres chambres ainsi qu'une salle de bains familiale avec baignoire jacuzzi.

Le rez-de-chaussée propose une cuisine bien aménagée avec électroménagers encastrés de qualité, ouverte sur une chaleureuse salle familiale agrémentée d'un foyer au bois.

Le sous-sol aménagé, doté de planchers en vinyle durables et étant demeuré toujours sec, comprend une quatrième chambre, une troisième salle de bains complète et une salle de lavage, offrant une grande flexibilité pour invités, adolescents ou bureau à domicile.

Située dans un quartier familial recherché, avec des voisins exceptionnels, cette propriété se trouve à proximité du parc Royal, des écoles primaires et secondaires, avec accès facile aux autoroutes 20 et 40, et à distance de marche du transport en commun et de la piscine communautaire.

Une occasion remarquable dans un quartier que tous rêveraient d'appeler chez soi.

-Le foyer est vendu sans aucune garantie quant à son conformité aux règlements applicables et aux exigences des compagnies d'assurance.

-Un nouveau certificat de localisation a été commandé.

-Toutes les offres doivent être accompagnées d'une lettre de préqualification financière à jour.

-L'ACHETEUR peut choisir le notaire, mais celui-ci doit être d'accord avec le VENDEUR. La signature doit avoir lieu à une distance raisonnable de la propriété.

Inclusions: Réfrigérateur, réfrigérateur à vin (non fonctionnel), réfrigérateurs et congélateur au garage, mini-frigo ext., cuisinière, four, micro-ondes, lave-vaisselle. Tous luminaires et couvertures fenêtres. Gazebo, cabanon, équipements piscine et robot. Ouvre-porte garage, alarme avec 3 caméras, aspirateur central (tuyau brisé). BBQ ext., table patio 6 chaises, tondeuse, débroussailleuse, souffleur, outils foyer, échelle, 2 tuyaux, poissons étang, 1 bureau verre au sous-sol, 2 chaises longues de patio.

Particularités du bâtiment :

  • Style: Maison détachée
  • Air climatisé: Oui
  • Allée: Asphalte, Double largeur ou plus
  • Dimensions : 30.0 x 42.0 Pieds
  • Équipement disponible: Installation aspirateur central, Climatiseur central, Échangeur d'air, Ouvre-porte électrique (garage), Système d'alarme, Thermopompe centrale
  • Fondation: Béton coulé
  • Foyer: Oui
  • Foyer-Poêle: Foyer au bois
  • Garage: Attaché, Chauffé, Simple largeur
  • Piscine: Oui
  • Proximité: Autoroute, Garderie/CPE, Parc, École primaire, Réseau Express Métropolitain (REM), École secondaire, Ski de fond, Train de banlieue, Transport en commun
  • Revêtement de la toiture: Bardeaux d'asphalte
  • Salle de bains: Salle de bains attenante à la CCP
  • Sous-sol: 6 pieds et plus, Totalement aménagé
  • Stationnement: Oui
  • Mode de chauffage: Air soufflé (pulsé)
  • Énergie pour le chauffage: Électricité
  • Approvisionnement en eau: Municipalité
  • Système d'égouts: Municipalité

Taxes:

  • Taxes municipales: 5 504 $
  • Taxe scolaire: 688 $
  • Taxes annuelles totales: 6 192 $

Évaluation :

  • Évaluation du terrain: 357 700 $
  • Évaluation de l'immeuble: 484 600 $
  • Évaluation totale: 842 300 $

Caractéristiques :

  • Bâti en: 1979
  • Chambres : 3+1
  • Dimensions du terrain : 7000.00 Pieds carrés
  • Irregular: Oui
  • Largeur du terrain en façade : 70.0 Pieds
  • Profondeur du terrain : 100.0 Pieds
  • Salle(s) de bains : 3
  • Salle(s) d'eau : 1
  • Zonage: RESI
  • Nbre d'espaces de stationnement: 3

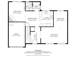
Détails des pièces :

  • Salon Rez-de-chaussée 5.60 m x 3.47 m Plancher : Parqueterie
  • Salle à dîner Rez-de-chaussée 2.90 m x 3.39 m Plancher : Parqueterie
  • Cuisine Rez-de-chaussée 2.85 m x 3.30 m Plancher : Autre - vinyle Note: comptoirs en granit
  • Coin-repas Rez-de-chaussée 3.4 m x 3.30 m Plancher : Autre - vinyle
  • Salle familiale Rez-de-chaussée 3.57 m x 4.18 m Plancher : Parqueterie Note: foyer au bois
  • Salle d'eau Rez-de-chaussée 1.4 m x 1.82 m Plancher : Céramique
  • Chambre principale 2e niveau 3.48 m x 7.82 m Plancher : Parqueterie
  • Salle de bains 2e niveau 2.35 m x 1.62 m Plancher : Céramique Note: SDB attenante
  • Chambre 2e niveau 2.66 m x 2.95 m Plancher : Parqueterie
  • Chambre 2e niveau 2.85 m x 3.38 m Plancher : Parqueterie
  • Salle de bains 2e niveau 2.35 m x 1.65 m Plancher : Céramique
  • Salle de jeux Sous-sol 7.94 m x 2.95 m Plancher : Autre - vinyle
  • Chambre Sous-sol 5.68 m x 3.28 m Plancher : Autre - vinyle
  • Salle de bains Sous-sol 1.70 m x 2.43 m Plancher : Céramique
  • Salle de lavage Sous-sol 5.28 m x 4.18 m Plancher : Béton

Gracieuseté de : Royal LePage Village

Données fournies par : Centris - 600 Ch Du Golf, Ile -Des -Soeurs, Québec H3E 1A8
Nous croyons que tous les renseignements affichés sont exacts, mais nous ne le garantissons pas; les renseignements devraient être vérifiés de façon indépendante. Aucune garantie ou représentation de quelque nature que ce soit n’est offerte. Droits© 2021 Tous les droits sont réservés.

  • Cour -
  • Salon -
  • Salon -
  • Salle à manger -
  • Salle à manger -
  • Cuisine -
  • Cuisine -
  • Cuisine -
  • Coin-repas -
  • Coin-repas -
  • Salle familiale -
  • Salle familiale -
  • Salle d'eau -
  • Escalier -
  • Hall d'entrée/Vestibule -
  • Chambre à coucher principale -
  • Chambre à coucher principale -
  • Salle de bains attenante à la CCP -
  • Chambre à coucher -
  • Chambre à coucher -
  • Chambre à coucher -
  • Salle de bains -
  • Salle de bains -
  • Salle de jeux -
  • Salle de jeux -
  • Chambre à coucher -
  • Salle de bains -
  • Façade -
  • Cour -
  • Terrasse -
  • Piscine -
  • Piscine -
  • Autre -
  • Autre -
  • Autre -
  • Autre -
  • Autre -
  • Autre -