30 Aidan Street, West Royalty, PE, C1A 3J4
409 900 $No. MLS® 202601569
Maison À vendre à Winsloe, West Royalty, Île-du-Prince-Édouard
3
Chambres
2
Salles de bain
-
0.12
Dimension du terrain
Currently under construction, 30 Aidan Street a sleek, modern semi-detached nestled in the sought after Windsor Park neighborhood. Offering 1,254 square feet of thoughtfully designed living space, this home is ideal for both homeowners and savvy investors. With three generous bedrooms, two full bathrooms, and a private courtyard perfect for relaxing or entertaining, comfort and convenience come together seamlessly. Step inside to a bright, open-concept floor plan featuring luxury vinyl flooring throughout the main areas as well as luxury vinyl tile in the bathrooms, providing long-lasting durability and effortless upkeep. The kitchen is a standout, combining style and function with quartz countertops and custom-built cabinetry boasting a modern flair. Best of all, all kitchen appliances are included. The large primary bedroom offers a spacious custom walk-in closet, and a private ensuite complete with a stylish shower and quartz-topped vanity. Finished with modern exterior styling and premium siding accents, this home delivers impressive curb appeal and protective covenants are in place to ensure long-lasting value. Perfectly positioned just minutes from UPEI, shopping, dining, coffeeshops, the Charlottetown Airport, and other amenities, you will enjoy a peaceful yet connected lifestyle. The property includes an 8-Year Lux Home Warranty. Please note: Tax and Assessment values are to be determined, HST included in price, rebate to be assigned to the Vendor. Listing agent is owner of property.
Caractéristiques :
- Taxes annuelles totales: 0 $
- Caractéristiques: Échangeur d'air, Salle de bain attenante
- Caractéristiques Communautaires: Parc, Terrain de jeux, Transport en commun, Centre récréatif, Service d'autobus scolaire, Commerces à proximité
- Caractéristiques du terrain: Aménagement paysager
- Chambres : 3
- Dimensions du terrain : 0.12
- Documents au Dossier: Acte translatif, Plan de l'étage, Clauses restrictives
- Électroménagers Inclus: Poêle, Lave-vaisselle, Combinaison micro-ondes/hotte de cuisinière, Réfrigérateur
- Entrée de GarageéStationnement: Pavé
- Évacuation des eaux d'égout: Municipal
- Finittion Extérieure: Vinyle, Revêtement de bois
- Fondation: Dalle
- Matériel de location: Aucun
- Revêtement de Plancher: Vinyle
- Salle(s) de bains : 2
- Services: Câble, Électricité, Internet haute vitesse, Téléphone
- Source d'eau: Municipal
- Sous-sol: Aucun
- Style du bâtiment: 1 niveau
- Superficie habitable (approx): 1254 Pieds carrés
- Taille de la propriété: Moins de 0,5 acre
- Titre d'un bien-fonds: Propriété franche
- Toit: Bardeaux d'asphalte
- Type de Carburant: Électrique
- Type de Chauffage/Refroidissement: Thermopompe - sans conduit, Chaleur rayonnante
- Garage: Contigu, Simple
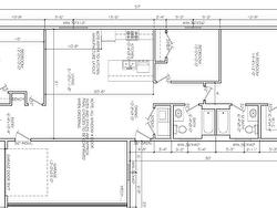
Détails des pièces :
- Cuisine Rez-de-chaussé 21' x 9'
- Salon Rez-de-chaussé 21' x 11'8
- Hall d'entrée Rez-de-chaussé 6'4 x 10'4
- Chambre principale Rez-de-chaussé 14'4 x 12
- Salle de bain ensuite Rez-de-chaussé 6'4 x 8'
- Chambre Rez-de-chaussé 12 x 10
- Chambre Rez-de-chaussé 10 x 10
- Salle de bains Rez-de-chaussé 6'4 x 8'
Gracieuseté de : HOMELIFE P.E.I. REALTY INC.
Données fournies par : Nova Scotia Association of REALTORS® 68 Highfield Park Drive, Bureau 112, Dartmouth, Nouvelle-Écosse B3A 0E4
Nous croyons que tous les renseignements affichés sont exacts, mais nous ne le garantissons pas; les renseignements devraient être vérifiés de façon indépendante. Aucune garantie ou représentation de quelque nature que ce soit n’est offerte. Droits © 2021 Tous les droits sont réservés.
Photos supplémentaires
