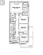
844 SOBESKI AVENUE, Woodstock (Woodstock - North), Ontario, N4T 0P2
689 999 $No. MLS® X12748796
Le contenu de cette inscription est fourni par REALTOR.ca et a été autorisé par les membres de l'Association canadienne de l'immeuble.
Photos supplémentaires


























