11 SYCAMORE DRIVE, Tillsonburg, Ontario, N4G 5S3
749 900 $No. MLS® X12676032
Maison À vendre à Tillsonburg, Ontario
749 900 $
3
Chambres
3
Salles de bain
-
52 x 115 FT
Dimension du terrain
Remarques :
(id:27)
Particularités du bâtiment :
- Style: Maison détachée
- Type de bâtiment: Unifamiliale
- Air climatisé: Oui
- État du sous-sol: Partiellement aménagé
- Fondation: Béton coulé
- Revêtement extérieur: Brique, Bardage en vinyle
- Stationnement: Oui
- Surface utile: 1100 - 1500 sqft
- Type d'architecture: Maison de plain-pied
- Type de construction: Isolée
- Type de sous-sol: Sous-sol complet
- Type de chauffage: Air pulsé
- Combustible de chauffage: Gaz naturel
- Type de climatisation: Climatisation centrale
Caractéristiques :
- Type de possession: Tenure franche
- Type de propriété: Unifamiliale
- Chambres : 1+2
- Dimensions du terrain : 52 x 115 FT
- Irregular: Oui
- Largeur du terrain en façade : 52 Pieds
- Profondeur du terrain : 115 Pieds
- Salle(s) de bains : 3
- Salle(s) d'eau : 1
- Superficie habitable (approx): 1100 - 1500 Pieds carrés
- Service d'égout: Égout sanitaire
- Type de stationnement: Garage attenant, Garage
- Nbre d'espaces de stationnement: 4
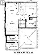
Détails des pièces :
- 2e chambre Sous-sol 3.38 m x 3.96 m 11.09 p x 12.99 p
- 3e chambre Sous-sol 3.93 m x 3.96 m 12.89 p x 12.99 p
- Salle de divertissement Sous-sol 4.29 m x 6.70 m 14.07 p x 21.98 p
- Salon Niveau rez-de-chaussée 4.29 m x 4.40 m 14.07 p x 14.44 p
- Salle à dîner Niveau rez-de-chaussée 3.04 m x 4.40 m 9.97 p x 14.44 p
- Cuisine Niveau rez-de-chaussée 3.74 m x 4.40 m 12.27 p x 14.44 p
- Chambre Niveau rez-de-chaussée 4.02 m x 4.38 m 13.19 p x 14.37 p
Gracieuseté de : TEAMRV REALTY INC., Century 21 Heritage House Ltd Brokerage
Le contenu des inscriptions fournies par REALTOR.ca a été autorisé par les membres de l'Association canadienne de l'immeuble.
Le contenu de cette inscription est fourni par REALTOR.ca et a été autorisé par les membres de l'Association canadienne de l'immeuble.
Photos supplémentaires


