423 420 $

Copropriété À vendre à College Heights, Thunder Bay, Ontario

423 420 $
  • 2

    Chambres

  • 1

    Salle de bain

  • $417.00

    Frais de copropriété

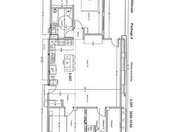
Welcome to #3207 at Hillcrest Neighbour Village Condos — where lifestyle meets comfort in the heart of College Heights. This west-facing 2-bedroom, 1-bath condo offers 1,420 sq. ft. of bright, open living with 10-foot ceilings, a unique layout, and an 18'11" balcony to enjoy Lake Superior sunsets every night. Modern finishes include quartz countertops, quality flooring, and designer fixtures. Enjoy exceptional amenities — rooftop terrace, fitness studio, pickleball & basketball courts, theatre room, and more — all just minutes from downtown Thunder Bay.

Caractéristiques :

  • Taxes annuelles totales: 0 $
  • Accès: Route municipale
  • Bâti en: 2026
  • Caractéristiques extérieures: Balcon
  • Caractéristiques intérieures: Échangeur d'air, Lave-vaisselle encastré, Climatiseur central, Buanderie à l'étage principal
  • Chambres : 2
  • Eau/puits: Aqueduc
  • Égouts/fosse septique: Égouts
  • Frais de copropriété : 417 $
  • Frais d'entretien incl.: Éléments communs, Assurance, Stationnement, Eau
  • Installations des condominiums: Salle commune, Ascenseur, Salle d'exercice, Centre de conditionnement physique, Salle de loisirs, Installation de buanderie (attenante), Débarras, Espace de stationnement extérieur, Système de sécurité, Stationnement pour visiteurs
  • Largeur du terrain en façade : 0 Pieds
  • Profondeur du terrain : 0 Pieds
  • Salle(s) de bains : 1+0
  • Services disponibles: Service d'autobus, Câble, Internet haute vitesse, Électricité, Gaz naturel, Service privé de ramassage d'ordures, Lampadaires, Téléphone
  • Style: Copropriété de type appartement
  • Superficie de la propriété: Entre 0,0 et 0,49 acre
  • Superficie habitable (approx): 1420 Pieds carrés
  • Type de chauffage: Air pulsé
  • Source de chauffage: Gaz naturel

Détails des pièces :

  • Salon Rez-de-chaussé 24'2x16'5
  • Cuisine Rez-de-chaussé 14'8x8"8
  • Chambre Rez-de-chaussé 15'x10'4
  • Chambre Rez-de-chaussé 13'x12'3
  • Salle de bains Rez-de-chaussé 4PC

Gracieuseté de : Royal LePage Lannon Realty

Le contenu des inscriptions fournies par REALTOR.ca a été autorisé par les membres de l'Association canadienne de l'immeuble.