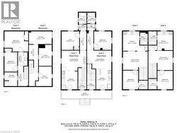
207 BEAVER Street, Thorold, Ontario, L2V 1B8
699 000 $No. MLS® 40590836
Le contenu de cette inscription est fourni par REALTOR.ca et a été autorisé par les membres de l'Association canadienne de l'immeuble.
Photos supplémentaires





































