Sales Representative
Royal LePage North Heritage Realty
, Courtage*
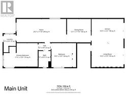
288 Albinson Street, Sudbury, Ontario, P3C 3W3
685 000 $No. MLS® 2126234
Photos supplémentaires


































