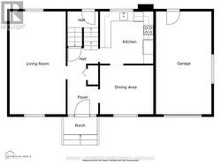
4 UPPER CANADA DRIVE, St. Catharines (Lakeshore), Ontario, L2N 3H4
799 000 $No. MLS® X12675910
Le contenu de cette inscription est fourni par REALTOR.ca et a été autorisé par les membres de l'Association canadienne de l'immeuble.
Photos supplémentaires







































