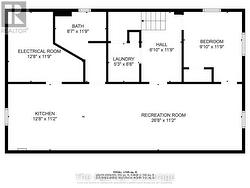
436 BUNTING ROAD, St. Catharines (Carlton/Bunting), Ontario, L2M 3Z4
650 000 $No. MLS® X12507258
Le contenu de cette inscription est fourni par REALTOR.ca et a été autorisé par les membres de l'Association canadienne de l'immeuble.
Photos supplémentaires






































