Maison en rangée À vendre à Southwold, Ontario
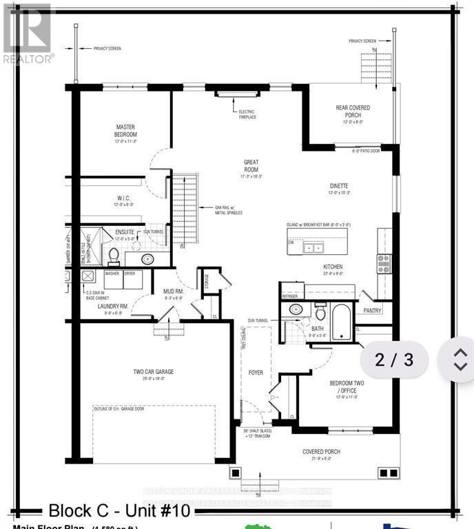
678 500 $ ÉvaluationExpressMC: Non disponible2 Chambres
3 Salles de bain
-
Détails
-
Carte
-
Données démographiques
-
Vue de la rue
-
Itinéraire
-
Publicité
Ventes/Historique de prix
Se connecter ou créer un compte pour voir les inscriptions vendues et les historiques d'inscriptions





