Maison À vendre à South Huron (Stephen), Ontario
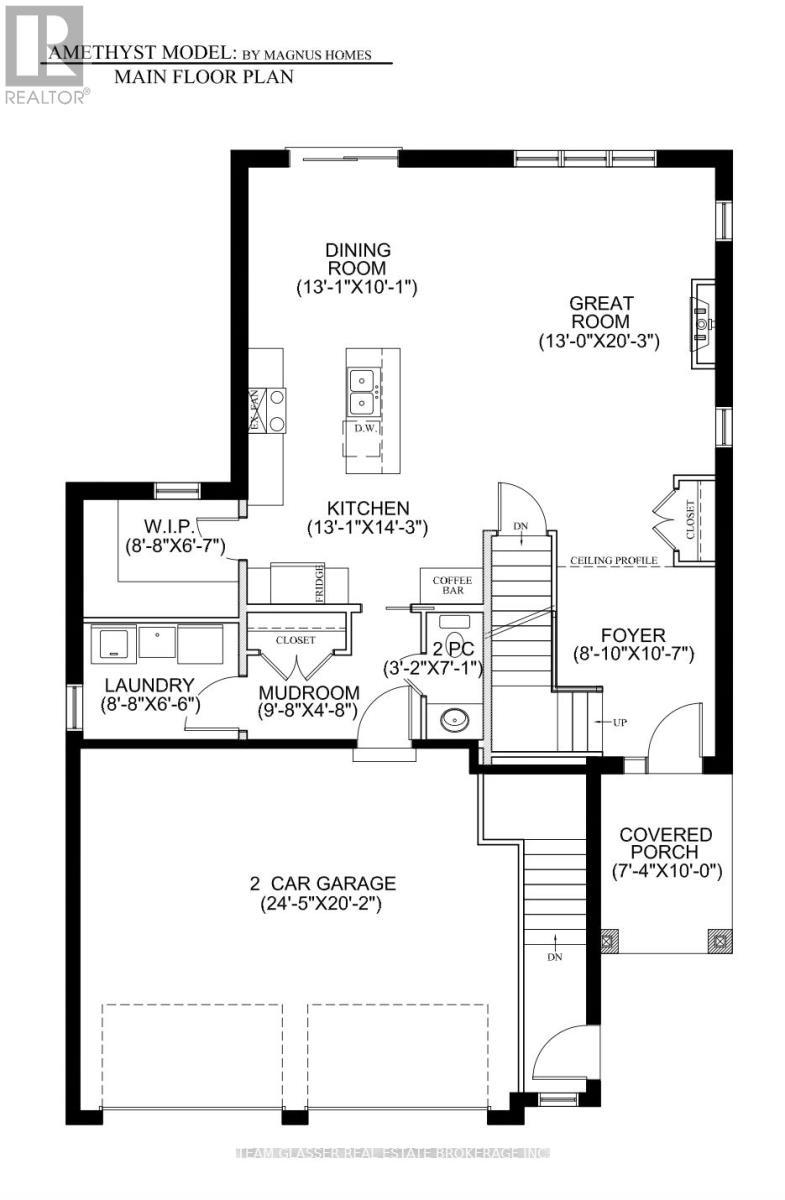
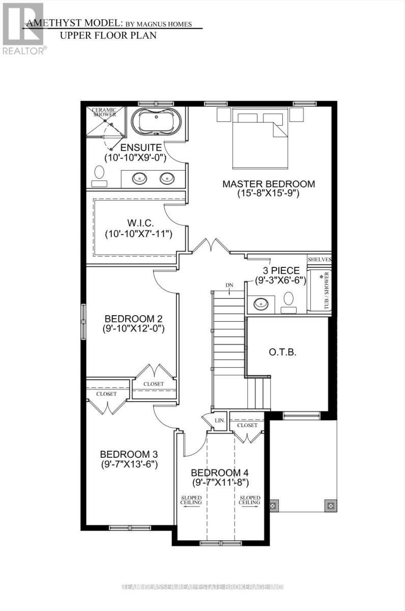
905 000 $ ÉvaluationExpressMC:4 Chambres
3 Salles de bain
-
Détails
-
Carte
-
Données démographiques
-
Vue de la rue
-
Itinéraire
-
Publicité



































