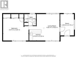
6261 - 911 - 6259 67TH AVENUE, South Glengarry, Ontario, K0C 1N0
299 900 $No. MLS® X12654794
Le contenu de cette inscription est fourni par REALTOR.ca et a été autorisé par les membres de l'Association canadienne de l'immeuble.
Photos supplémentaires















































