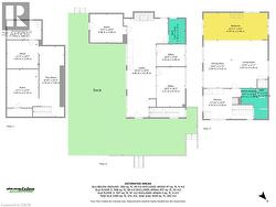
401 MAIN Street, Port Dover, Ontario, N0A 1N0
899 900 $No. MLS® 40797989
Le contenu de cette inscription est fourni par REALTOR.ca et a été autorisé par les membres de l'Association canadienne de l'immeuble.
Photos supplémentaires




























