579 900 $

Copropriété À vendre à Vieil Ottawa-Est, Ottawa, Ontario

579 900 $
  • 2

    Chambres

  • 2

    Salles de bain

  • $932.49

    Frais de copropriété

Remarques :

(id:27)

Particularités du bâtiment :

  • Style: Appartement
  • Type de bâtiment: Appartement
  • Air climatisé: Oui
  • Protection incendie: Détecteur d'oxyde de carbone
  • Revêtement extérieur: Brique
  • Stationnement: Oui
  • Surface utile: 1000 - 1199 sqft
  • Type de sous-sol: Pas de sous-sol
  • Type de chauffage: Air pulsé
  • Combustible de chauffage: Gaz naturel
  • Type de climatisation: Climatisation centrale
  • Électroménagers: Télécommande(s) d'ouvre-porte de garage, Interphone, Lave-vaisselle, Sécheuse, Hotte, Cuisinière, Machine à laver, Réfrigérateur

Caractéristiques :

  • Type de possession: Copropriété divise
  • Type de propriété: Unifamiliale
  • Caractéristiques: Terrain plat, Balcon, Buanderie
  • Caractéristiques de la communauté: Animaux permis avec restrictions
  • Chambres : 2
  • Frais de copropriété : 932 $ Mensuel
  • Frais d'entretien: Eau, Assurance
  • Salle(s) de bains : 2
  • Superficie habitable (approx): 1000 - 1199 Pieds carrés
  • Type de structure: Terrasse(s)
  • Type de stationnement: Stationnement souterrain, Garage
  • Nbre d'espaces de stationnement: 1

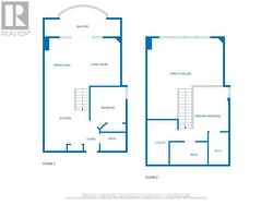
Détails des pièces :

  • 2e chambre Niveau rez-de-chaussée 2.92 m x 2.49 m
  • Autre Niveau rez-de-chaussée 6.25 m x 2.49 m
  • Cuisine Niveau rez-de-chaussée 3.68 m x 5.38 m
  • Salle à dîner Niveau rez-de-chaussée 2.87 m x 3.94 m
  • Salon Niveau rez-de-chaussée 3.45 m x 3.94 m
  • Hall d'entrée Niveau rez-de-chaussée 1.24 m x 2.57 m
  • Salle de bains Niveau rez-de-chaussée 2.08 m x 1.50 m
  • Chambre principale Niveau supérieur 4.11 m x 4.47 m
  • Salle de bains Niveau supérieur 3.10 m x 1.83 m
  • Autre Niveau supérieur 1.65 m x 2.64 m
  • Pièce utilitaire Niveau supérieur 2.46 m x 3.66 m

Gracieuseté de : Royal LePage Integrity Realty

Le contenu des inscriptions fournies par REALTOR.ca a été autorisé par les membres de l'Association canadienne de l'immeuble.