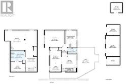
27 SIMCOE STREET, Orillia, Ontario, L3V 1G5
449 900 $No. MLS® S12713688
Le contenu de cette inscription est fourni par REALTOR.ca et a été autorisé par les membres de l'Association canadienne de l'immeuble.
Photos supplémentaires



























