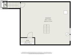
16319 SEVENTH ROAD, North Stormont, Ontario, K0C 1W0
549 900 $No. MLS® X12757932
Le contenu de cette inscription est fourni par REALTOR.ca et a été autorisé par les membres de l'Association canadienne de l'immeuble.
Photos supplémentaires





































