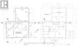
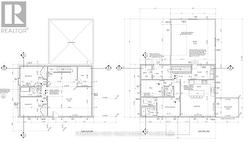
23 MAPLE RIDGE ROAD, Nipissing, Ontario, P0A 1Z0
799 999 $No. MLS® X12732804
Le contenu de cette inscription est fourni par REALTOR.ca et a été autorisé par les membres de l'Association canadienne de l'immeuble.
Photos supplémentaires













