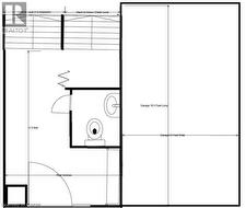
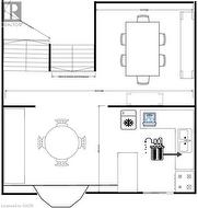
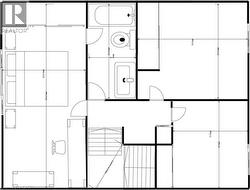
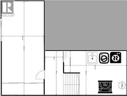
3395 CLIFF Road N Unit# 38, Mississauga, Ontario, L5A 3M7
723 999 $No. MLS® 40802124
Le contenu de cette inscription est fourni par REALTOR.ca et a été autorisé par les membres de l'Association canadienne de l'immeuble.
Photos supplémentaires
















































