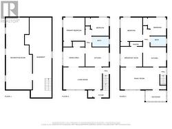
204 BURNSIDE DRIVE, London East (East I), Ontario, N5V 1B7
659 900 $No. MLS® X12675200
Le contenu de cette inscription est fourni par REALTOR.ca et a été autorisé par les membres de l'Association canadienne de l'immeuble.
Photos supplémentaires








































