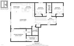
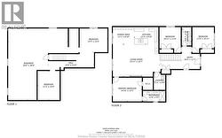
76 BELLEVIEW DRIVE, Kingsville, Ontario, N0R 1B0
779 900 $No. MLS® 26002006
Le contenu de cette inscription est fourni par REALTOR.ca et a été autorisé par les membres de l'Association canadienne de l'immeuble.
Photos supplémentaires































