Sales Representative
Royal LePage Frank Real Estate
, Courtage*
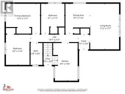
32 MELBOURNE STREET E, Kawartha Lakes (Lindsay), Ontario, K9V 1X7
524 999 $No. MLS® X12509228
Sales Representative
Royal LePage Frank Real Estate
, Courtage*
Photos supplémentaires









































