999 999 $

Maison À vendre à Sheldon, Hamilton, Ontario

999 999 $
  • 4

    Chambres

  • 4

    Salles de bain

  • 4

    Espaces de stationnement

Step into the welcoming embrace of this pristine Spallacci masterpiece, where executive living meets undeniable charm in a highly coveted West Mountain setting. Every detail of this home has been thoughtfully curated, promising a truly effortless, turn-key transition. At the heart of it all, the gourmet, eat-in kitchen awaits, a vision of elegance with rich granite countertops, a delicate marble backsplash, refined cabinetry, a gas stove, and top-tier stainless steel appliances—a perfect space for morning coffee or hosting cherished gatherings. Throughout the main levels, the home delights the senses with the warmth of gleaming hardwood flooring, leading the eye to a graceful staircase, while sophisticated porcelain and ceramic tilework adds a touch of enduring quality. Downstairs, the professionally finished basement offers a sophisticated retreat for leisure and comfort. Outside, your private oasis beckons: a beautiful, maintenance-free yard featuring a sparkling saltwater pool(2022), perfect for luxurious summer relaxation. Perfectly situated near excellent schools, amenities, and highway links, this upgraded home is not just a residence; it is a rare opportunity to acquire a space where beauty, quality, and convenience reside in perfect harmony.

Particularités du bâtiment :

  • Piscine: Oui
  • Stationnement: Oui
  • Surface utile: 2674 Pieds carrés

Caractéristiques :

  • Bâti en: 2012
  • Caractéristiques de la buanderie: Dans l'unité
  • Caractéristiques de la piscine: Creusée, Eau salée, Creusée, Eau salée
  • Caractéristiques des fenêtres: Rideaux
  • Caractéristiques du foyer: Électrique
  • Caractéristiques du lot: Urbain, Pavée, Stationnement spacieux, Parc, Zone tranquille
  • Caractéristiques du stationnement: Garage mitoyen, Entrée intérieure
  • Caractéristiques extérieures: Zone récréative
  • Caractéristiques intérieures: Système d'aspiration central, Conduits pour système d'aspiration central
  • Chambres : 4
  • Chauffage: Air pulsé, Gaz naturel
  • Climatisation: Climatiseur central
  • Échelle d'acres: < 0,5
  • Égouts: Égout (municipal)
  • Largeur du terrain en façade : 31.99 Pieds
  • Matériaux de construction: Brique, Pierre
  • Profondeur du terrain : 107.15 Pieds
  • Salle(s) de bains : 3+1
  • Source d'eau: Municipal
  • Sous-sol: Pleine grandeur, Fini
  • Stationnement de la voie d'accès: Entrée privée double
  • Style architectural: 2 étage
  • Superficie habitable (approx): 2674 Pieds carrés
  • Toiture: Bardeaux d'asphalte
  • Type de bord de route: Route publique
  • Zonage: R-4/S-1301a
  • Nbre d'espaces de stationnement: 4

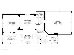
Détails des pièces :

  • Salle à dîner Rez-de-chaussé 3.68 X 3.35
  • Cuisine Rez-de-chaussé 3.86 X 3.25
  • Autre Rez-de-chaussé 3.73 X 2.64
  • Salle de bains Rez-de-chaussé 1.80 X 1.40
  • Salon Rez-de-chaussé 3.91 X 4.17
  • Chambre principale 2e niveau 3.84 X 4.65
  • Hall d'entrée Rez-de-chaussé 2.62 X 2.13
  • Autre 2e niveau 3.38 X 2.01
  • Chambre 2e niveau 3.96 X 3.12
  • Chambre 2e niveau 2.87 X 3.07
  • Salle de bains 2e niveau 2.49 X 2.39
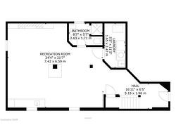
  • Salle de divertissement Sous-sol 7.42 X 6.58
  • Chambre 2e niveau 3.68 X 3.53
  • Salle de lavage Sous-sol 1.65 X 3.48
  • Salle de bains Sous-sol 2.62 X 1.70

Gracieuseté de : RE/MAX Escarpment Realty Inc.

Le contenu des inscriptions fournies par REALTOR.ca a été autorisé par les membres de l'Association canadienne de l'immeuble.