14.00 $

Commercial À louer à Corktown, Hamilton, Ontario

14.00 $

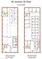
This exceptional freestanding office opportunity offers approximately 12,212 square feet across two well-appointed floors, each encompassing around 6,100 square feet. The space features a welcoming street-level reception area, numerous large windows that flood the interior with natural light, and a combination of private offices and open-concept areas. Each floor is equipped with its own boardroom, kitchen, and washrooms, providing a self-contained and efficient layout. The existing high-quality improvements can accommodate a variety of professional uses, with the flexibility to modify the layout to suit specific tenant requirements. Situated in the heart of downtown Hamilton, this property boasts 29 on-site parking spaces (including 16 tandem spots), with additional overflow parking available nearby at an extra cost. The net lease structure includes all utilities and janitorial services within the TMI, offering tenants a straightforward and predictable occupancy cost. Located within the Downtown Hamilton Business Improvement Area, tenants will benefit from a vibrant urban environment with excellent walkability, transit access, and proximity to a diverse mix of amenities, including restaurants, retail shops, and cultural institutions. This location is ideal for businesses seeking a prominent presence in a dynamic and evolving downtown core.

Particularités du bâtiment :

  • Stationnement: Oui
  • Surface utile: 12212 Pieds carrés

Caractéristiques :

  • Caractéristiques du lot: Terrain irrégulier, Stationnement spacieux, Propriété urbaine, Transport en commun
  • Chambres : 0
  • Échelle d'acres: Non applicable
  • Égouts: Égout (municipal)
  • Largeur du terrain en façade : 0.00 Pieds
  • Source d'eau: Municipal
  • Sous-sol: Aucun
  • Superficie habitable (approx): 12212 Pieds carrés
  • Zonage: D1

Gracieuseté de : Blair Blanchard Stapleton Ltd.

Le contenu des inscriptions fournies par REALTOR.ca a été autorisé par les membres de l'Association canadienne de l'immeuble.