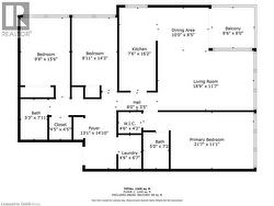
40 HARRISFORD Street Unit# 402, Hamilton, Ontario, L8K 6N1
464 500 $No. MLS® 40800843
Le contenu de cette inscription est fourni par REALTOR.ca et a été autorisé par les membres de l'Association canadienne de l'immeuble.
Photos supplémentaires
































