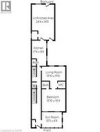
185 MARKET Street, Hamilton, Ontario, L8R 1P1
599 900 $No. MLS® 40788420
Le contenu de cette inscription est fourni par REALTOR.ca et a été autorisé par les membres de l'Association canadienne de l'immeuble.
Photos supplémentaires
















































