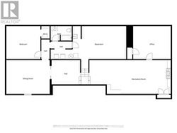
501 SAMUEL HARPER COURT, East Gwillimbury, Ontario, L0G 1M0
1 585 000 $No. MLS® N12720068
Le contenu de cette inscription est fourni par REALTOR.ca et a été autorisé par les membres de l'Association canadienne de l'immeuble.
Photos supplémentaires











































