849 000 $

Maison À vendre à Caledonia, Ontario

849 000 $
  • 4

    Chambres

  • 4

    Salles de bain

  • 0.19 Acres

    Dimension du terrain

Lovely curb appeal awaits at 43 Buchanan Drive. Located in a quiet, south side neighbourhood, this 4 bedroom home is a delight. The main floor features a beautiful and bright eat in kitchen, including all appliances, even a wine fridge, sunken living room with wood burning fireplace and a separate dining room. A 2piece bath is featured here, along with inside entry from the garage. Patio doors off the kitchen welcome you to a lovely landscaped rear yard with a patio built for entertaining, including a natural gas hook up for your bbq. The upper level features, the main bath and 4 good sized bedrooms- the main bedroom offers double closets and a large ensuite bath. The lower level is partially finished with a rec room and loads of storage and a convenient 2 piece bath. The laundry room is also on the lower level. Notable items: The driveway and curbs were completed in 2022. Air conditioner replaced in 2023. Shingles replaced in 2022. Washer and dryer, both new within the last year. (id:7525)

Particularités du bâtiment :

  • Style: Maison détachée
  • Type de bâtiment: Unifamiliale
  • Air climatisé: Oui
  • Alimentation du foyer: Bois
  • État du sous-sol: Partiellement aménagé
  • Fondation: Béton coulé
  • Foyer: Oui
  • Matériaux de construction: Charpente en bois
  • Revêtement extérieur: Revêtement extérieur en métal, Bardage en vinyle, Bois
  • Stationnement: Oui
  • Surface utile: 1903 sqft
  • Type d'architecture: 2 étages
  • Type de construction: Isolée
  • Type de foyer: Autre - voir les remarques
  • Type de sous-sol: Sous-sol complet
  • Type de chauffage: Air pulsé
  • Combustible de chauffage: Gaz naturel
  • Type de climatisation: Climatisation centrale
  • Électroménagers: Aspirateur central, Lave-vaisselle, Sécheuse, Réfrigérateur, Cuisinière, Machine à laver, Frigo à vin, Ouvre-porte de garage

Caractéristiques :

  • Type de possession: Tenure franche
  • Type de propriété: Unifamiliale
  • Bâti en: 1993
  • Caractéristiques: Pompe de vidange, Ouvre-porte de garage automatique
  • Caractéristiques de la communauté: Secteur paisible, Centre communautaire
  • Chambres : 4
  • Dimensions du terrain : 0.19 Acres
  • Irregular: Oui
  • Largeur du terrain en façade : 70 Pieds
  • Profondeur du terrain : 121 Pieds
  • Salle(s) de bains : 4
  • Salle(s) d'eau : 2
  • Services à proximité: Parc, Terrain de jeu
  • Superficie habitable (approx): 1903 Pieds carrés
  • Type de communication: Internet haute vitesse
  • Type de services publiques: Électricité - Disponible, Gaz naturel - Disponible
  • Zonage: H A7B
  • Service d'égout: Égout municipal
  • Type de stationnement: Garage attenant
  • Nbre d'espaces de stationnement: 4

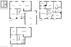
Détails des pièces :

  • Salle de bains 2e niveau Measurements not available
  • Salle de bains 2e niveau Measurements not available
  • Chambre 2e niveau 12'9'' x 9'4''
  • Chambre 2e niveau 11'11'' x 11'0''
  • Chambre 2e niveau 13'11'' x 10'5''
  • Chambre principale 2e niveau 15'7'' x 11'11''
  • Salle de bains Sous-sol Measurements not available
  • Salle de divertissement Sous-sol 11'3'' x 9'10''
  • Salle de bains Niveau rez-de-chaussée Measurements not available
  • Salon Niveau rez-de-chaussée 15'7'' x 13'10''
  • Cuisine Niveau rez-de-chaussée 24'2'' x 11'10''
  • Salle à dîner Niveau rez-de-chaussée 15'4'' x 11'10''

Gracieuseté de : Royal LePage Macro Realty

Le contenu des inscriptions fournies par REALTOR.ca a été autorisé par les membres de l'Association canadienne de l'immeuble.