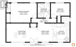
155 PRINCE EDWARD STREET, Brighton, Ontario, K0K 1H0
499 000 $No. MLS® X12704972
Le contenu de cette inscription est fourni par REALTOR.ca et a été autorisé par les membres de l'Association canadienne de l'immeuble.
Photos supplémentaires





































