Sales Representative
Royal LePage Action Realty
, Courtage*
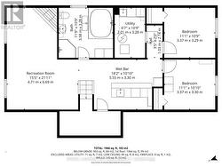
71 BARNES AVENUE, Brantford, Ontario, N3R 4Y9
749 900 $No. MLS® X12691854
Photos supplémentaires





















