Broker Real Estate Agent
Royal LePage Real Estate Associates
, Courtage*
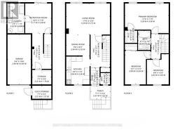
2 MOREGATE CRESCENT, Brampton, Ontario, L6S 3K9
535 000 $No. MLS® W12465259
Sales Representative
Royal LePage Real Estate Associates
, Courtage*
Photos supplémentaires































