Copropriété À vendre à Fletcher's Creek South, Brampton, Ontario
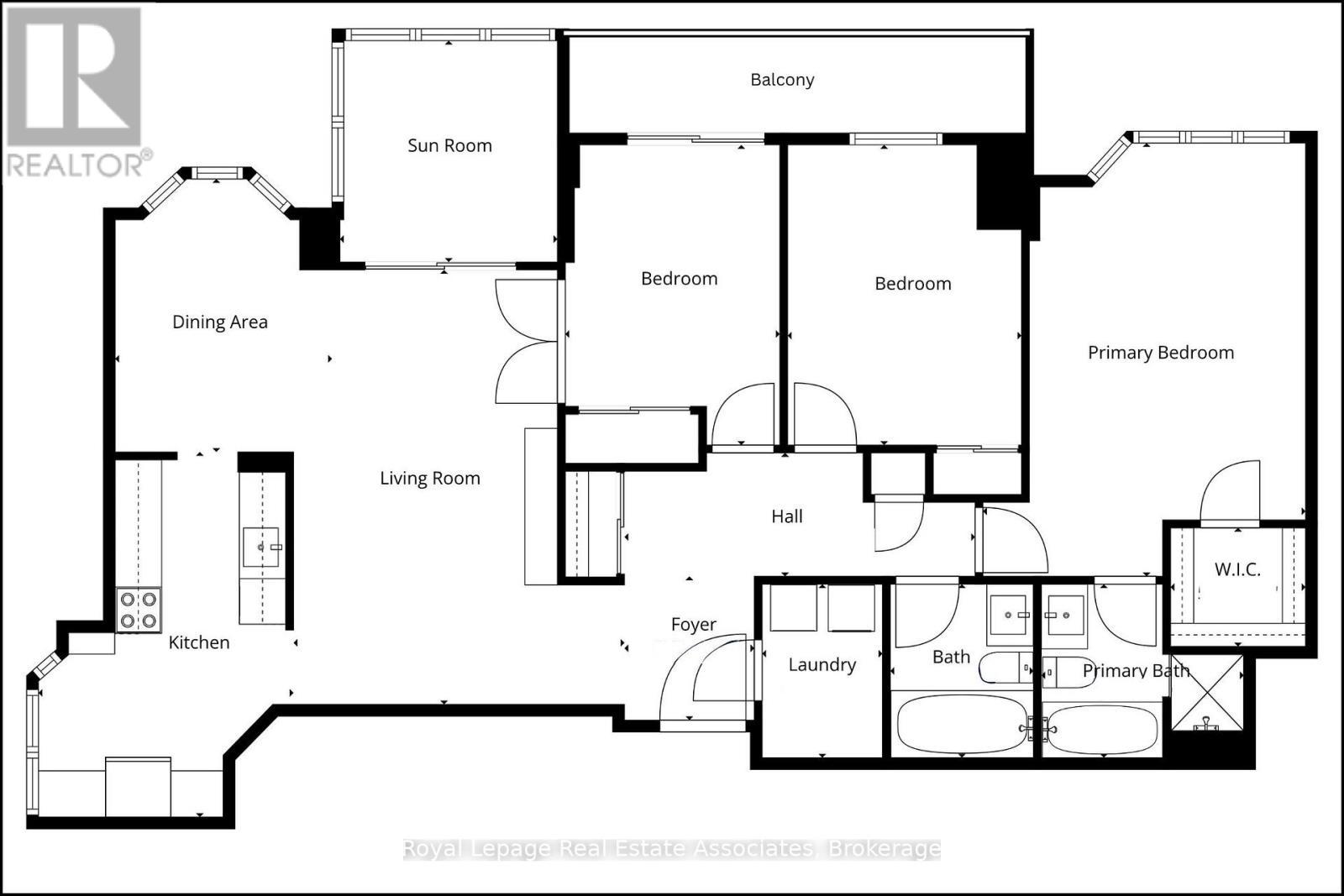
550 000 $ ÉvaluationExpressMC:3+1 Chambres
2 Salles de bain
-
Détails
-
Carte
-
Données démographiques
-
Vue de la rue
-
Itinéraire
-
Publicité
MULTIMEDIA
























