Maison À vendre à Azilda, Ontario
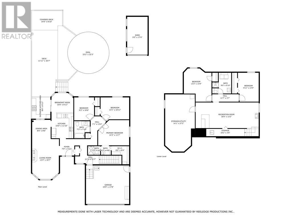
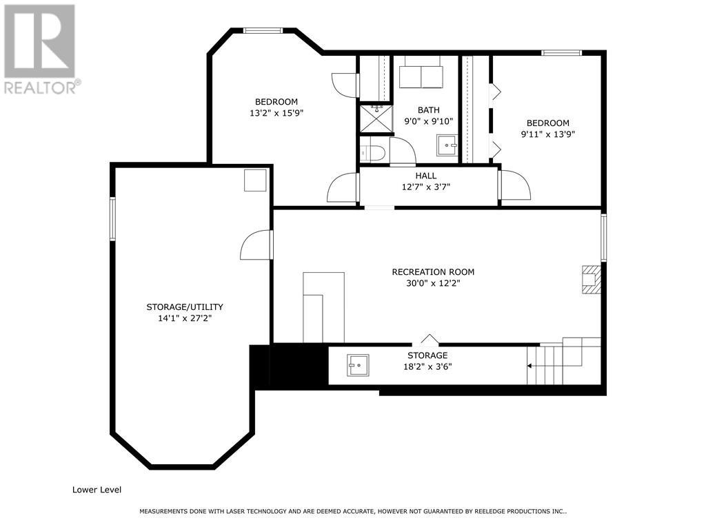
629 900 $ ÉvaluationExpressMC:5 Chambres
3 Salles de bain
-
Détails
-
Carte
-
Données démographiques
-
Vue de la rue
-
Itinéraire
-
Publicité




















































