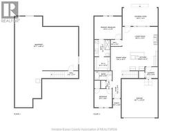
54 MULBERRY COURT, Amherstburg, Ontario, N9V 1N3
679 444 $No. MLS® 25028454
-
Visites libres
- dim 15 févr 2026 13h00 - 15h00
Le contenu de cette inscription est fourni par REALTOR.ca et a été autorisé par les membres de l'Association canadienne de l'immeuble.
Photos supplémentaires
































