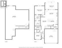
10 MULBERRY COURT, Amherstburg, Ontario, N9V 1N3
699 999 $No. MLS® 25027523
-
Visites libres
- dim 14 déc 2025 13h00 - 15h00
Le contenu de cette inscription est fourni par REALTOR.ca et a été autorisé par les membres de l'Association canadienne de l'immeuble.
Photos supplémentaires
































