1 233 333 $

Commercial À vendre à New Glasgow, Nouvelle-Écosse

1 233 333 $

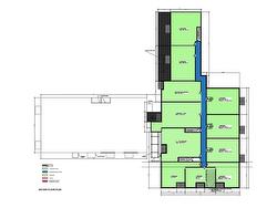
An application for Development Agreement(DA) for a 31–40 unit project has already received verbal approval in the town of New Glasgow—an area currently in need of both affordable and market-rate housing. This property could be the perfect opportunity you’ve been waiting for!Whether you're looking for move-in-ready office space, potential residential units, or secure dry storage, this versatile property has endless possibilities. The existing building, while requiring some updates, offers ample parking, off-road access, loading dock doors, and dual street frontage on both Frederick and Washington Streets—ensuring maximum convenience. Currently, the interior includes a few offices and a meeting room, while the warehouse section is easily accessible and well-suited for storage or rental use. To simplify the purchasing process, the property comes with an Application Package that will be formally approved before the buyer's final transaction.Don’t miss this exceptional investment opportunity—perfect for a multi-unit development with strong potential for government-backed financing assistance!

Caractéristiques :

  • Bâti en: Y
  • CARACTÉRISTIQUES DU BÂTIMENT: Portes entre 10 et 15 pi, Chargement au niveau du quai, Remise
  • Documents au Dossier: Plan de l'étage, Autres documents
  • Entrée de GarageéStationnement: Gravier, Espace(s) de stationnement, Pavé
  • Matériel de location: Aucun
  • Revêtement de Plancher: Béton, Bois
  • Services: Électricité, Approvisionnement en eau par la ville, Égout, Téléphone
  • Source d'eau: Municipal
  • Sous-type: Entrepôt
  • Superficie habitable (approx): 16037 Pieds carrés
  • Taille de la propriété: Entre 0,5 et 0,99 acre
  • Titre d'un bien-fonds: Propriété franche
  • Toit: Bardeaux d'asphalte
  • Type de Carburant: Électrique
  • Type de Chauffage/Refroidissement: Autre

Gracieuseté de : House Maestro Realty Inc.

Données fournies par : Nova Scotia Association of REALTORS® 68 Highfield Park Drive, Bureau 112, Dartmouth, Nouvelle-Écosse B3A 0E4
Nous croyons que tous les renseignements affichés sont exacts, mais nous ne le garantissons pas; les renseignements devraient être vérifiés de façon indépendante. Aucune garantie ou représentation de quelque nature que ce soit n’est offerte. Droits © 2021 Tous les droits sont réservés.